Референтен код 82361 в www.novdom1.bg!
Консултант недвижими имоти: Калоян Щерев, тел. 0894 555 630!
Крайна цена с включено ДДС! Без индексации!
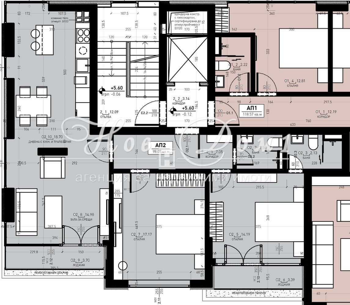
Апартаментът представлява: Голяма всекидневна около 31м2, Спалня с дрешник около 15.5м2, Втора спалня около 15м2, Баня с тоалетна около 3.8м2, отделна тоалетна около 2.1м2, тераса около 4.7м2, антре с склад около 10м2. Разположен на 2ри от 8 етажа в уникална нова сграда разположената на ТОП локация в Дружба 1, в близост до метрото. Безупречно изпълнение на сградата от доверни строители с луксозни общи части и голяма озеленена част около сградата с детска площатка. В близост до бул. Брюксел, Цариградски шосе и бул. Александър малинов, което му дава отличен достъп до останалата част на града. АКТ 16 се очаква 2027г.
Продажната му цена е 219 776 с ДДС! Без значение от начина на плащане!
Опция за подземни и партерни паркоместа!
Примерна схема на плащане е:
- 10% - Стоп Капаро
- 30% - АКТ 2 , Предварителен договор
- 30% - Плоча на етаж
- 15% - АКТ 14
- 10% - АКТ 15
- 5% - АКТ 16
Предлагаме и още много имоти в същата сграда, звъннете за повече информация:
Апартаменти:
2ст: от 154 044 до 182 545
3ст: от 219 776 до 241 821
4ст: от 254 323 до 268 531
Офиси:
3ст: от 213 045 до 224 947
4ст: от 254 323 до 268 531
Цените варират според квадратура и етаж!
Най-високото качество на строителство и не само:
- Озеленен площи около сградата
- Контрол на достъпа
- Качествени материали с завършване по БДС
- Луксозни общи части
- Модерен завършек
- СОТ
Забележка: Приложените снимки, схеми и визуализации са с цел добиване на максимална представа за имота.
Състояние: Жилището се завършва до БДС: Екстериорна блиндирана врата; Под и стени: Машинно-обработена замаска; Отделено място за газово котле.
Сградата: Използване на високо-качествени материали в строителството на сградата. Луксозно завършени общи части, асансьор. Терасите са със стъклени парапети. Санирана. Модерна фасада. Контролиран достъп в сградата. СОТ на цялата площ на комплекса. Хубави зелени площи около сградата и детска площатка
Отлична локация:
- Лесен достъп до Цариградски щосе и бул. Брюксел
- 9 мин пеша от метростанция Дружба
- 10 мин пеша от Парк Дружба - Езерото
- 10 мин пеша от супермаркет Фантастико
- 15 мин пеша / 5 мин с кола до супермаркет Kaufland
- 20 мин пеша / 8 мин с кола до The Mall
- 20 мин пеша от трамвайни спирки 20 , 21 , 22 , 23
- На крачки от спирки на рейсове 204 , 404 , 4
- На 14 мин пеша от Библиотекарския университет
- На 8 мин пеша от спирки на рейсове 84 ,88 , 604
Нов Дом 1 - винаги най-доброто на пазара!
Виж всички обяви в novdom1sf.bazar.bg или тук
        
       
         
         
         
         
         
         
         
         
         
             
             
             
             
             
             
             
             
            






