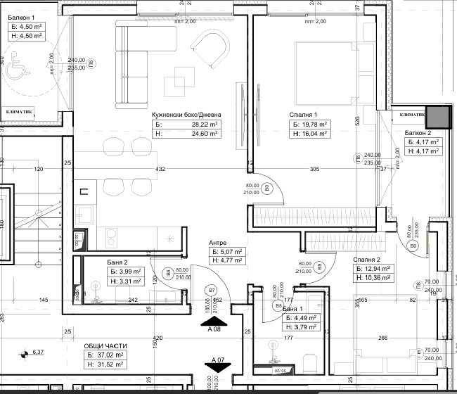
БЕЗ КОМИСИОННА ОТ КУПУВАЧА !!!ТОП МЯСТО!!! Ново строителство на метри от метростанция Обеля ! Tристаен апартамент в строеж в малка сграда с модерна визия и съвременна архитектура, непосредствено до спирки на транспорт, множество магазини, училища и детски градини. Апартамент 8 е разположен на 3 ти жилищен етаж с РЗП - 94.71 кв.м., с ЗП от 82.96 кв,м. Разпледеление: входно антре, дневна с кухненски бокс, две бани с тоалетни, 2 спални, склад и две тераси. Възможност за покупка на паркомясто!
Откриване на строителна площадка 10.2025г.
Шпакловка и замазка, асансьор, отопление на ток.
Дограма: с PVC профили с троен стъклопакет







