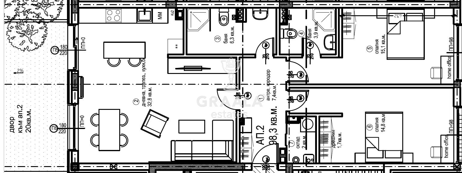
Луксозна сграда пред акт 16! Предлагаме за продажба жилище в новопостроена бутикова сграда, отстояща на близо 4км. от гр. София. Районът е развит и се превърна в изключително приятен за живеене благодарение на природата, чистият въздух и климат. Имотът представлява тристайно жилище с ЧЖП - 98,30 кв.м., разпределени между просторна дневна с обособена кухненска част, от която се излиза на дворно място от 20кв.м.,входно антре, коридор, две спални, две бани - тоалетни, складово помещение. Жилището се намира на партерен етаж и предвид дворното място към него, създава усещане за къща. Изложението е изток- запад. Отоплението ще бъде посредством изградено подово отопление. Голямо предимство е наличието на канализация, за разлика от повечето населени места в близост до столицата.
Основни предимства на сградата:
Високотехнологична вентилируема окачена фасада на водещия италиански производител LAMINAM;
Висок клас алуминиева дограма с троен стъклопакет от световния лидер REHAU;
Луксозни асансьори Thyssen Krupp Elevators с повишена енергийна ефективност и неповторимо усещане за лукс, комфорт и принадлежност към специално място;
Подово отопление, инсталирано във всяко жилище;
Луксозно завършени общи части;
Богато озеленена територия на сградата.
Степента на завършване на имота е шпакловка и замазка. Към момента сградата е вече с акт 15.Очакван акт 16 - м.февруари/м.март 2026г. В цената на имота са включени:
- Заложена инсталация за подово отопление за целия апартамент
- Декинг за двор
- Пергула
Безплатен интернет до 300 mbps за първите две години.
Има възможност за допълнително закупуване на гараж от 25000Е.
За повече информация и огледи, моля обадете се на отговорния консултант! ID 180







