РС ЕСТЕЙТС предлага за продажба:
Апартаменти и ателиета в нова жилищна сграда в кв. Зона Б-19 :
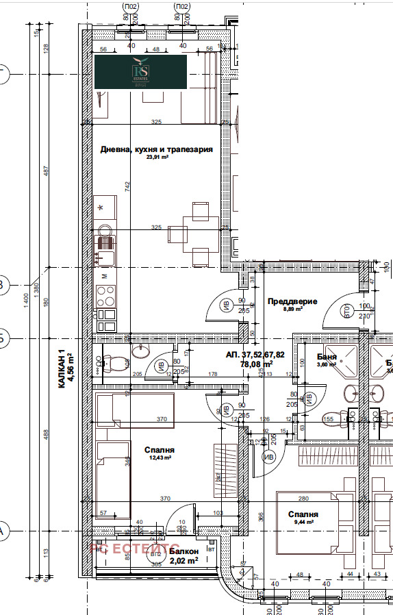
Ет.3
Площ: 101.58 m2
Две спани, две санитарни помещения, всекидневна с кухненски бокс, тераса.
Локация:
Сградата се намира на тиха улица в кв. Зона Б-19 , в близост до парк Възраждане и парк Св. Петър и Павел . Районът е изключително комуникативен, с лесен достъп до бул. Константин Величков и бул. Възкресение . В околността са разположени множество удобства метростанция Константин Величков , спирки на градския транспорт, магазин Била , 57 ОУ, бизнес център Сердика и други.
Разпределението е:
Сградата е проектирана на шест надпартерни етажа с подземен гараж и предлага избор от двустайни, тристайни апартаменти и ателиета. Всеки имот се отличава с функционално разпределение и комфортни помещения, подходящи както за лично ползване, така и за инвестиция.
Предимства на имота:
Жилищата се издават по БДС с изпълнени висококачествени строителни работи: стени и тавани турбозол, подове циментова замазка, входни врати блиндирани, прозорци и външни врати PVC дограма със стъклопакет.
Конструкцията е стоманобетонна, с тухлени вътрешни и външни стени.
Изпълнени са всички необходими електрически, ВиК и слаботокови инсталации, както и звънчева система.
В сградата ще откриете завършени общи части с гранитогрес по стълбищата, домофонна система, озеленено дворно място с ограда и монтирано градинско осветление.
Схеми на плащане:
Предлагат се гъвкави схеми за разсрочено плащане:
Вариант I девет етапа, обвързани с напредъка на строителството.
Вариант II 20% при предварителен договор и 80% при Акт 16 (цената се увеличава с 12%).
Оглед на имота:
Можем да организираме оглед на имота в удобно за Вас време. За целта, свържете се с отговорния за офертата брокер и му кажете кога бихте искали да направите оглед.
Резервация на имота:
Имотът може да бъде резервиран и свален от продажба със заплащане на депозит, след което се прекратява провеждането на огледи с други купувачи и започва подготовка на документите за сключване на предварителен и окончателен договор. Свържете се с отговорния брокер за този имот за подробна информация.
Финансиране на имота:
Агенцията си партнира с най-големия кредитен посредник в България и можем да ви съдействаме с преференциални условия за жилищно кредитиране.
Виж всички обяви в rs-estates.bazar.bg или тук
        
       
         
         
         
         
         
         
         
         
         
         
         
         
         
             
             
             
             
             
             
             
             
             
             
             
             
            






