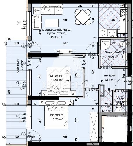
Агенция Живена продава тристаен апартамент с обща площ: 105.31 кв.м, ЗП: 85.77 кв.м, на 2-ри етаж в нова сграда в строеж, кв. Младост 1. Разпределението на имота е следното: антре (5.84 кв.м), дневна с трапезария (23.23 кв.м), две спални (16.20 и 11.05 кв.м), баня с WC (4.06 кв.м), отделна тоалетна (1.49 кв.м), килер (1.47 кв.м) и балкон (12.30 кв.м) с излаз от всяка стая. Изложението му е ориентирано на запад. Апартаментите ще се издават в степен на завършеност по БДС - на шпакловка, мазилка и замазка; с висок клас блиндирана врата, монтирани изводи за климатици във всички стаи. Сградата ще бъде завършена с модерен облик, луксозно завършени общи части и асансьори. Има възможност да изберете други двустайни или тристайни апартаменти. Може да бъде закупено паркомясто на цени от 18 000 евро до 23 000 евро. Предлагат се гъвкави схеми на плащане. Стартирало е строителството, в момента са на втора плоча. Акт 14 се очаква през октомври 2026 г. Срокът за построяване и въвеждане в експлоатация е 36 месеца. Комплексът се простира на терен от 10 декара, с 2 внушителни жилищни сгради с 18 надземни етажи и ще разполага с озеленен парк за отдих и разходка, хранителен магазин, просторни търговски площи, 386 броя паркоместа - в открит и покрит паркинг, както и гаражни клетки. Намира се в географския център на града, в непосредствена близост до здравни услуги, спортни центрове, училища, супермаркети, молове и забавления, което осигурява всичко необходимо за съвременен градски живот, с отличен достъп, в тих и спокоен район, в близост до основни пътни артерии, само на 15 минути от Община Варна. Агенция Живена извършва необходимите проверки на имота, който сте избрали, организира всички етапи на сделката до нейното финализиране. Оказваме съдействие за отпускане на банков кредит. Оферта 7370







