Имоти премиер предлага:
🏡 Тристаен апартамент с панорамна гледка в новострояща се сграда Зона Д, Бургас
💶 Цена: 1000 /кв.м | Преди Акт 14
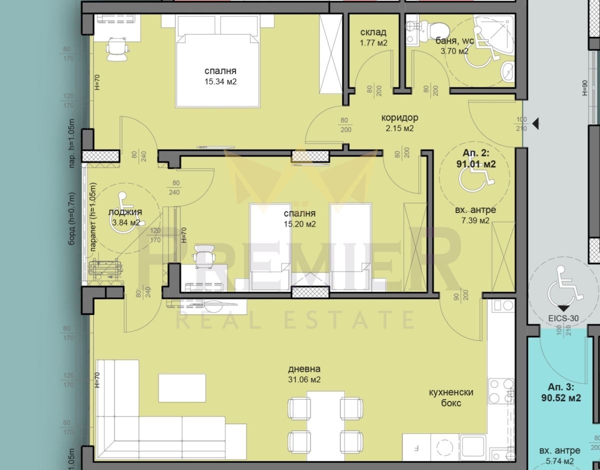
Предлагаме Ви просторен тристаен апартамент, проектиран с внимание към всеки детайл, в модерна жилищна сграда в престижната Зона Д. Имотът е отличен избор както за собствен дом, така и за инвестиция.
🔹 Разпределение на апартамента:
Просторен хол с кухненски бокс
Две спални
Баня с тоалетна
Входно антре
Коридор
Лоджия с впечатляваща панорама
Склад
Южно изложение
🏢 За сградата:
Съвременна жилищна сграда в процес на строителство, разположена в една от най-предпочитаните части на Бургас Зона Д, непосредствено до голяма хранителна верига магазини.
🌅 Уникални предимства:
Несравними панорамни гледки към:
Бургаския залив
Централната част на града
Бургаското езеро
Живописната борова гора осигуряваща чист въздух и възможност за релакс
Близост до ключова инфраструктура и отлична локация с лесен достъп
🚗 Опции за паркиране:
Паркомясто първо ниво, етаж -1 (кота -3.15 м): 15 000
Паркомясто второ ниво, етаж 0 (кота 0.00 м): 20 000
🛠 Допълнителна информация:
Използвани са висококачествени материали и технологии
Гъвкави условия на плащане и избор на апартаменти с различна площ
Инвестиция на ранен етап от строителството (преди Акт 14)
📞 Свържете се с нас днес, за да получите план на апартамента, допълнителна информация и персонализирана оферта!
Код на оферта: 372198







