Предлагаме ви за продажба тристаен апартамент с впечатляваща морска панорама, разположен в престижната и спокойна местност Ален мак.
Жилището е с обща площ 131 кв.м, което осигурява простор и комфорт за цялото семейство. В цената е включено собствено паркомясто, осигуряващо удобство и сигурност за вашия автомобил.
Имотът е подходящ както за целогодишно живеене, така и за ваканционен дом край морето. Локацията предлага комбинация от тишина, зеленина и бърз достъп до плажа и градската инфраструктура.
Описание на имота:
Тип: Тристаен апартамент
Етаж: Втори етаж (сградата е с плосък покрив)
Площ: 131 кв. м
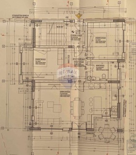
Разпределение: Всекидневна с кухненска част, две спални, баня с тоалетна, тераса с морска панорама
Състояние: Завършен по БДС турбозолна мазилка, под замазка, блиндирана входна врата
Дограма: PVC Rehau в цвят антрацит, троен стъклопакет, профил - 7 камери
Фасади: Италиански материали Италбонд в сив цвят
Акт 14 в процес на завършване на сградата
Включено в цената паркомясто
Предимства:
Просторен апартамент с функционално разпределение
Панорама море
Висококачествени материали и модерна визия на сградата
Включено собствено паркомясто
Тих и спокоен район, в близост до плажа
Местоположение:
Апартаментът се намира в местност Ален Мак, на ул. Фернандо Магелан. Районът е предпочитан заради близостта си до морето, комплексите с ваканционни и жилищни имоти, както и удобния достъп до центъра на Варна и популярния курорт Златни пясъци. Наоколо ще откриете магазини, заведения, автобусни спирки и плажни ивици, а същевременно ще се радвате на спокойна и зелена среда.







