🏢 Тристаен апартамент в новострояща се сграда Саут Вю Резиденс ж.к. Дружба 1, Плевен
📍 Локация: ж.к. Дружба 1, зад ОУ Климент Охридски
🏢 Сграда: Саут Вю Резиденс съвременен проект с удобна градска локация
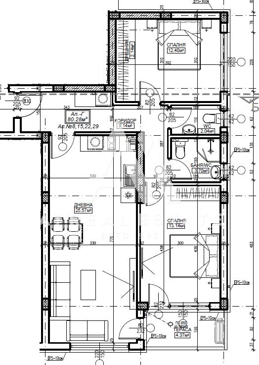
📐 Обща площ: 88.32 кв.м
🧱 Чиста площ: 80.28 кв.м
📦 Общи части: 8.03 кв.м
🏢 Етаж: 4 от 5
Предлагаме за продажба функционален тристаен апартамент в новостроящата се сграда Саут Вю Резиденс, разположена в тиха зона на ж.к. Дружба 1, непосредствено зад училище ОУ Климент Охридски .
✨ Разпределение:
Просторна дневна с кухненски кът
Две Спални
Баня с тоалетна и тоалетна
Тераса с достъп от дневна и спалня
📌 Приложен е чертеж с разпределението на жилището за по-добра визуализация.
🔥 Отопление: ТЕЦ и топла вода гарантиран комфорт през зимата
🛒 Предимства на локацията:
В непосредствена близост до училище, магазини, детска градина и площадка
Спокойна жилищна среда с бърз достъп до градски транспорт и централната част на града
🏗️ Саут Вю Резиденс е проектирана с фокус върху комфорт, функционалност и качество на изпълнение, което я прави отличен избор както за първи дом, така и за инвестиция с дългосрочен потенциал.
📞 Свържете се с нас за повече информация, актуални наличности и планове.
🔑 ОФЕРТА ЕА 16010







