Продава се юго-източен апартамент със статут на офис на първи висок етаж с балкон, напълно функционален за живеене. Без комисион за купувача се продава. Цена гараж 20 000 , парко място 15 000 . На битов ток е имота ако не се ползва за бизнес.
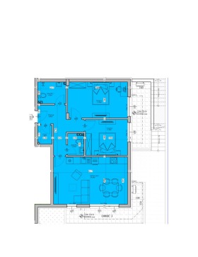
Имота разполага с : дневна с кухненски бокс 26.70 м2., отделно две спални по 14 м2 и 18 м2, две бани всяка по 4 м2, коридор и килер. Жилището е с две тераси като двор по 4 и 6 м2
Възможност за покупка на парко място. Гараж или Външно паркомясто.
Жилището се продава по желание на клиента по БДС на тази цена,с опция да бъде завършено 'до ключ' или напълно обзаведено.
Всички апартаменти ще бъдат завършени по БДС, а именно нивелирана подова замазка готова за поставяне на паркет и/или ламинат. Стени с гипсокартон, с поставена 5 см. каменна вата отвътре, седем камерна дограма с троен стъклопакет 4 сезона/бяло/К и петнадесет сантиметра EPS топлоизолация по фасадата.
Завършени общи части с камък, асансьор, инсталирана домофона система, прекарани инсталации включително оптични кабели, FTP и инсталация за климатици във всяка стая, камери за наблюдение около сградата и станция с възможност за зареждане на ел. автомобил.
Материалите които ще се използват са от класа на Ceresit, Mapei, Wienerberger, Semmelrock, Bauer, BauMit, Rigips, Knauf, Sika и други отговарящи на всички високи стандарти в строителството.







