БЕЗ КОМИСИОНА за КУПУВАЧА! Актуализирана цена от 15.08.! Най-добра цена в района!
Продава 3-Стаен апартамент в новострояща се сграда от доказан строител с множество завършени качествено сгради. Очакван акт 16 през 2027г.
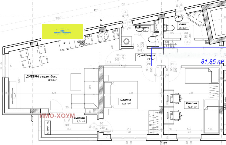
Площ от 99.59 м2 с ОЧ и 88.85 м2 ЗП
Разпределението е както следва: антре 7.2 м2, хол с кухненски бокс 22.7 м2, две спални по 12.6 м2, баня с тоалетна 3.43 м2, втора тоалетна 3 м2 и балкон 3.5 м2
Локацията е отлична - тиха и спокойна уличка, но същевременно в непосредствена близост до спирки на градски транспорт, хранителни магазини, училища и детски градини и бърз достъп до бул. Цариградско шосе!
Налични паркоместа от 13 125 евро
Сградата е разпродадена на 80%, но все още се предлагат и апартаменти на други етажи!
При интерес моля пишете на [email protected] или позвънете на 098 8951012







