Много подробна информация относно строителството на комплекса може да получите на линка :
https://www.karlovo-residence.com/
НА ВСЯКА ЦЕНА РАЗГЛЕДАЙТЕ САЙТА ПО- ГОРЕ!
KARLOVO RESIDENCE е проект, вдъхновен от идеята за дом, който носи спокойствие, хармония и сигурност за поколения напред. Качество, което ще оставим във времето.
KARLOVO RESIDENCE е новостроящ се затворен комплекс от НИСКИ СГРАДИ на 4 и 5 етажа. Разположен е в ТИХ И СПОКОЕН КВАРТАЛ, на комуникативно място с бърз достъп до главни пътни артерии и спирки на обществения транспорт. Подходящ ЗА СЕМЕЙСТВА, в близост има училище, детска градина, ЖП гара и търговски парк Retail Park Karlovo.
Инвеститорът СТРОИ ВЪРХУ СВОЙ СОБСТВЕН парцел, ограден от три улици. Без обезщетения към трети лица. Финансиран е със собствени средства и без банкови и други заеми.
В KARLOVO RESIDENCE ще има двустайни, тристайни и четиристайни апартаменти. Апартаментите на партерния етаж ще разполагат с обособена градина.
- Всички апартаменти са проектирани МАЛКО ПО-ГОЛЕМИ от обичайно предлаганите ново строителство на пазара с мисъл за хората, които ще живеят в тях.
- Без преходни стаи, с удобно ВХОДНО АНТРЕ към всеки дом.
- БАНЯ за всяка СПАЛНЯ.
- Само с КАЧЕСТВЕНИ И СКЪПИ МАТЕРИАЛИ - тухли Wienerberger Porotherm Thermo, тръби Pipelife, дренажна мембрана на Onduline, системи за хидроизолация на Sika, коминни системи на Schiedel, самонабъбващи ленти Kryton и др., закупени и вложени до момента.
- 6 степенна ЗАЩИТА СРЕЩУ ВЛАГА, изграден УНИКАЛЕН ДРЕНАЖ около сградата.
- БЕЗ КОМПРОМИСИ при конструкцията, проекта и изпълнението.
- Зидария само с тухли Wienerberger Porotherm Thermo, тухли с почти ДВОЙНО ПО-ДОБРА ТОПЛОИЗОЛАЦИЯ от обикновените.
- Подземен паркинг С ДВЕ ЛЕНТИ за движение на входа и изхода, красиви и функционално проектирани коридори, ЖИВОПИСЕН ВЪТРЕШЕН ДВОР.
- Проект, създаден от водещ архитектурен екип, с БОГАТ МЕЖДУНАРОДЕН ОПИТ.
- СТРОГ КОНТРОЛ върху качеството на изпълнение от инвеститор, надзор и строител.
Ние поемаме ангажимента да завършим строителството със СОБСТВЕНИ СРЕДСТВА. Вие получавате сигурност, че за своя дом 80% от цената ЩЕ ПЛАТИТЕ само след като го видите ЗАВЪРШЕН.
За ПЪРВИТЕ КЛИЕНТИ предлагаме НАЙ-ИЗГОДНИЯ и СИГУРЕН начин за закупуване на имот.
20% - Плащане при подписване на предварителен договор
80% - Цялата останала сума СЛЕД ЗАВЪРШВАНЕ на сградата и получаване на Акт 16
Най-добрата възможност за купувачи с кредит!
Цена на кв.м от 990 евро до 1350 евро.
Изградихме КРАСИВ И УДОБЕН ОФИС непосредствено до строежа. Заповядайте НА МЯСТО да се запознаете с всички детайли, които Ви интересуват.
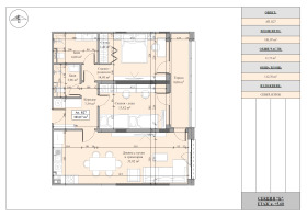
Предлагаме за продажба тристаен апартамент, разположен на 3ти етаж от 5.
Жилището разполага с: дневна с кухня и трапезария, 2 спални, 2 бани, склад и тераса.
- застроена площ: 101,07 кв.м
- изложение: север, изток
- състояние: в строеж
- срок на завършване: декември 2026г.



