ДИРЕКТНО ОТ ИНВЕСТИТОР, БЕЗ КОМИСИОНА И БЕЗ ИНДЕКСАЦИЯ НА ЦЕНИТЕ! САМОСТОЯТЕЛЕН ДВОР КЪМ ЖИЛИЩЕТО с площ от 43,20 кв.м., КОЙТО НЕ СЕ ЗАПЛАЩА! ВЪЗМОЖНИ ТЪРГОВСКИ ОТСТЪПКИ ДО 5%!
Представяме на Вашето внимание, модерна МНОГОФАМИЛНА ЖИЛИЩНА СГРАДА, в границите на която е предвидена алейна мрежа и богато озеленяване (тревни площи, висока дървесна растителност и вертикално озеленяване). Сградата се намира в жк. Обеля 2, район ''Връбница'', близо до ЧОУ ''Дружба '', 140СУ ''Иван Богоров '', 30-ти ДКЦ и ДГ 5, предлага отлична локация, удобни транспортни връзки, само на 10 минути пеша от метростанция - Обеля. Бърз и удобен достъп до бул. Ломско шосе, центъра на София и Околовръстен път. Имотът граничи с терен предвиден за изграждане на детска градина.
Подхода до жилищната сграда се осъществява чрез новопроектирана и изградена ул. 'Долни чучур', чрез ул. '103-та' и чрез ул. 'Илия Георгов'.
Автомобилният подход до сутеренния етаж се осъществява посредством две рампи. Едната е двулентова, а другата е еднолентова. В подземния гараж са осигурени 129 бр. паркоместа, 4 бр. гаражи със собствени зарядни станции, складово помещения и достъп до стълбищни клетки и асансьори на всяка една от секциите.
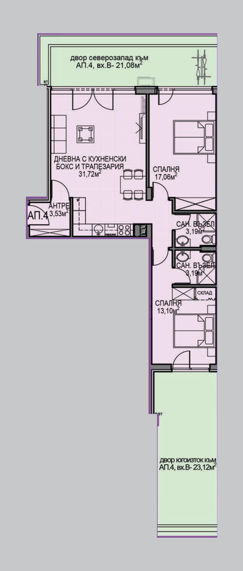
Сградата е решена на шест етажа и разполага с 122 бр. жилища, които са двустайни и тристайни. Жилищата са разпределени в шест входа, като на всеки етаж има по три или четири апартамента. Жилищата които са разположени на партерния етаж, разполагат със самостоятелни дворни площи.
Жилищата ще се предават на шпакловка и замазка, монтирана блиндирана входна врата, ключове и контакти на LEGRAND, отопление и топла вода ще бъдат на ТЕЦ, монтирани алуминиеви радиатори, монтирани топломери с дистанционно отчитане, монтирани водомери с модул за дистанционно отчитане, възможност за изграждане на разводки за климатици във всекидневните. Всички жилища ще разполагат със звънчево-домофонна инсталация и видеоконтрол на достъп, организиране на СОТ инсталация - проектиране и структурно окабеляване, монтиран видео - домофонен панел и монтиран видео - домофонен приемник.
Има възможност за закупуване на подземни паркоместа на цени от 15 500 евро с ДДС и гаражи със собствени зарядни станции на цени от 23 900 евро с ДДС.
Предлагаме гъвкави схеми на плащане по етапите на строителство и възможност за търговски отстъпки!
За повече информация и огледи Иван Пенчев, телефони за контакт: 0899-851-565.







