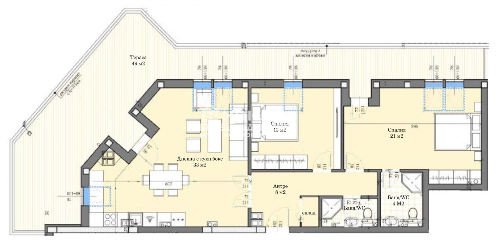
Оферта 66287: Предлагаме Ви функционален тристаен апартамент с перфектно разпределение в нова модерна сграда със собствен стил, изчистена визия, проектирана така, че да създаде максимален комфорт и уют за живеене. Проектът предсталвява нискоетажно жилищно строителство, в съответна близост до новоизграден парк, спортни площадки и места за отдих и почивка. Жилището се състои от дневна - 33кв.м., обособена на кътове, две големи самостоятелни спални: детска 13,32кв.м. и родитекска 21кв.м. със собствена баня, широко входно антре, килер с опция за перално помещение, втора баня с тоалетни и една панорамна тераса 49кв.м. Сградата привлича вниманието със своята локация, разположена в близост до Гребна база и парк Отдих и култура, обособили се като едни от най-развиващите се и предпочитани райони за живеене в града. Сградата се изпълнява от една от водещите строителни компании, наложила се на пазара с множество готови обекти, изпълнени с изключително високо качество и прецизност. Възможност за разсрочено плащане в рамките на строителството, както и възможност за закупуванечрез Банков Кредит с изключително изгодни условия за клиенти на агенция 'Кондор'!!! СВОБОДНИ ПОДЗЕМНИ ГАРАЖИ и ПАРКОМЕСТА !!!
ВИЖТЕ ОЩЕ ИЗГОДНИ ОФЕРТИ НА https://www.kondorimoti.com/ С ЕЖЕДНЕВНА АКТУАЛИЗАЦИЯ!







