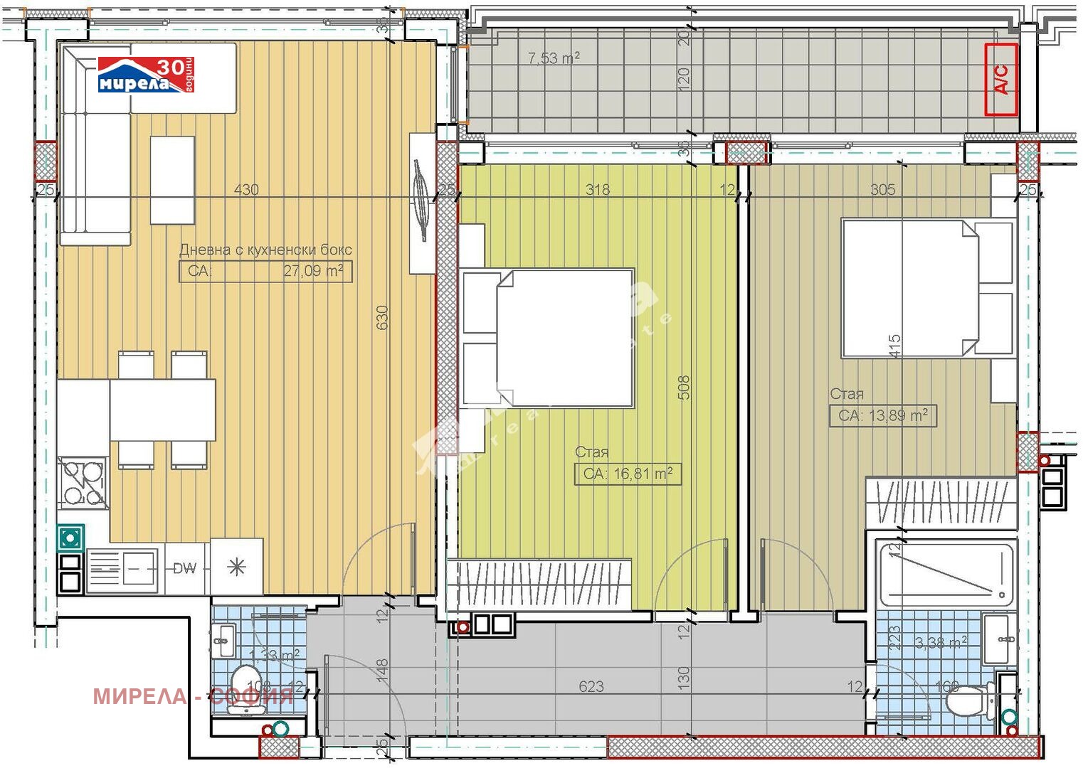
Представяме ви 3-стаен апартамент в бутикова сграда с висок клас на изпълнение, която се намира в м-т Гърдова глава, в близост до спирки на градски транспорт, училища и детски градини.
Имотът се състои от коридор, дневна с кухненски бокс, две спални баня с тоалетна, отделна тоалетна и тераса.
В цената е вкл. склад със светла площ: 3.51 кв.м.
Има 1 балкон/тераса; Непреходен; ВИД СТРОИТЕЛСТВО: стоманобетонна конструкция; ЗАСТРОЕНА ПЛОЩ 90.58 кв.м; ИЗЛОЖЕНИЕ: запад; СПАЛНИ: 2; БАНИ: 1; ДОГРАМА: Седем камерна PVC
_________________________________________________________________________________________________
Към потенциалните продавачи!
Ако продавате подобен имот или обмисляте дали да го направите в близко бъдеще, моля свържете се с мен. Имам клиенти, които търсят в района. Мога да дам ориентировъчна цена по телефон или имейл и по-точна цена при оглед на място.
ОГЛЕДЪТ И КОНСУЛТАЦИЯТА СА БЕЗПЛАТНИ.
МОЖЕТЕ СЪЩО ТАКА, ДА ПОДАДЕТЕ И БЕЗПЛАТНА ЧАСТНА ОБЯВА ЗА ПРОДАЖБА НА ВАШИЯ ИМОТ В MIRELA.BG, БЕЗ БРОКЕР И КОМИСИОНА.
Виж всички обяви в mirela.bazar.bg или тук
        
       
         
         
             
            






