Тристаен апартамент в ново строяща се сграда, с модерно разпределение и висококачествени строителни материали. Жилището включва просторна дневна с кухненски бокс, две спални, две бани с тоалетни (едната свързана със спалнята) и килер за допълнително съхранение. Освен това, апартаментът разполага с тераса, с излаз както от дневната, така и от едната спалня, която предоставя допълнително пространство за отдих и релакс. Сградата ще бъде завършена с внимание към енергийната ефективност и съвременните технологии, предлагаща асансьор, видеонаблюдение и стилно оформени общи части. Отлично местоположение с лесен достъп до транспортни връзки, магазини и услуги. Възможност за персонализиране на довършителните работи според предпочитанията на клиента. Идеален избор както за инвестиция, така и за уютно семейно жилище.
Тристаен апартамент
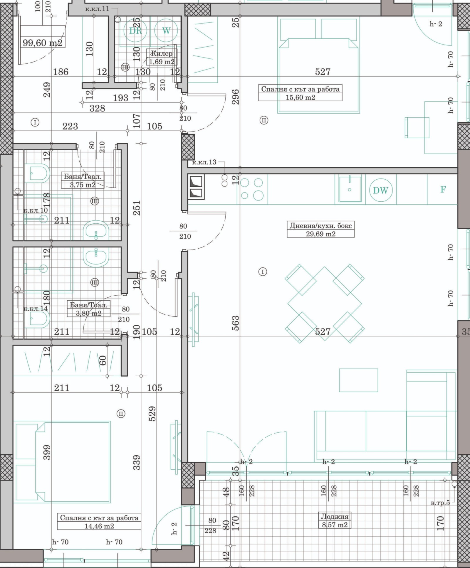
Чиста площ на жилището: 99,60 к.м2;
Обща площ: 113,42 к.м2;
Дневен тракт: 29,69 к.м2;
Спалня 1: 15,60 к.м2;
Спалня 2: 14,46 к.м2;
Баня 1: 3,80 к.м2;
Баня 2: 3,75 к.м2;
Килер: 1,69 к.м2;
Лоджия: 8,57 к.м2;
Изложение: югоизток







