Отговорен брокер: Иванка Стойкова
Представяме ви тристаен апартамент, разположен в модерна, малка сграда в един от най-спокойните и озеленени квартали на София Овча Купел. Районът се отличава с тиха жилищна атмосфера, чист въздух и близост до природата на крачка от подножието на Витоша планина. В същото време локацията е комуникативна, с бърз достъп до ключови пътни артерии, университети, градски транспорт, супермаркети, заведения, здравни и образователни институции.
Сградата е с издаден Акт 14, а въвеждането в експлоатация (Акт 16) се очаква през април 2026 г.
В строителството са използвани съвременни технологии и висококачествени материали. Изпълнението е дело на доказана строителна компания с безупречна репутация, поставяща фокус върху детайла и дълготрайната стойност на имота.
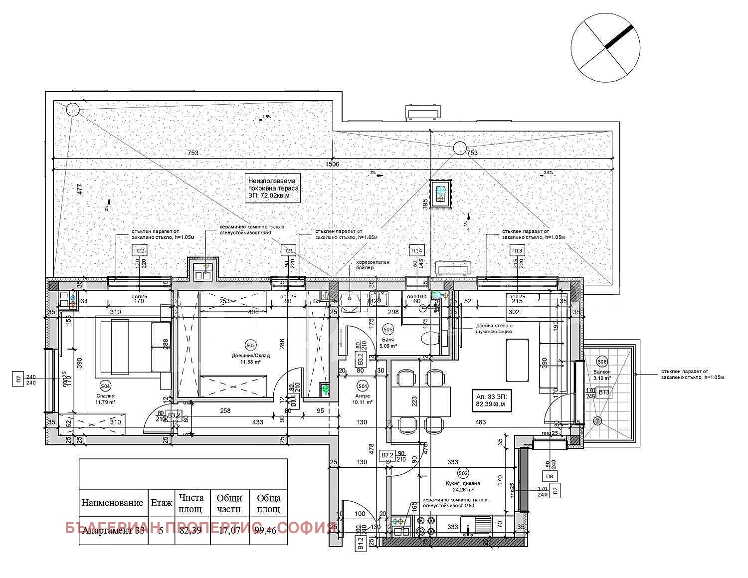
Апартаментът е с площ от 99.46 кв.м, включваща 82.39 кв.м чиста жилищна площ и 17.07 кв.м идеални части. Функционалното разпределение включва:
входно антре - 10.11 кв.м.
просторна дневна с кухненски бокс - 24.26 кв.м.
баня с тоалетна - 5.09 кв.м.
спалня - 11.79 кв.м.
стая - 11.58 кв.м.
балкон с излаз от дневната - 3.19 кв.м.
голяма тераса - 72.02 кв.м.
Имотът се продава без довършителни работи, по БДС:
подове машинна циментова замазка
стени и тавани машинна гипсова мазилка
санитарни помещения подготвени за довършителни дейности
балкони с мразоустойчив гранитогрес, довършени в синхрон с фасадата
петкамерна немска PVC дограма с троен стъклопакет и нискоемисионно стъкло
блиндирана входна врата Солид 55 със секретна брава
Имотът е отличен избор както за лично ползване, така и за инвестиция районът е предпочитан от млади семейства, студенти и професионалисти, което гарантира добра доходност при отдаване под наем.
Свържете се с нас за повече информация и организиране на оглед.
Оглед на имота
Можем да организираме оглед на имота спрямо нашия график и възможностите за достъп до него. Заявете вашето желание за оглед, като се свържете с отговорния за офертата брокер по имейл или телефон.
Резервация на имота
Имотът може да бъде резервиран и свален от продажба със заплащане на депозит, след което се прекратява провеждането на огледи с други купувачи и започва подготовка на документите за сключване на предварителен и окончателен договор. Свържете се с отговорния брокер за подробна ...
Виж всички обяви в novostroitelstvo.bazar.bg или тук







