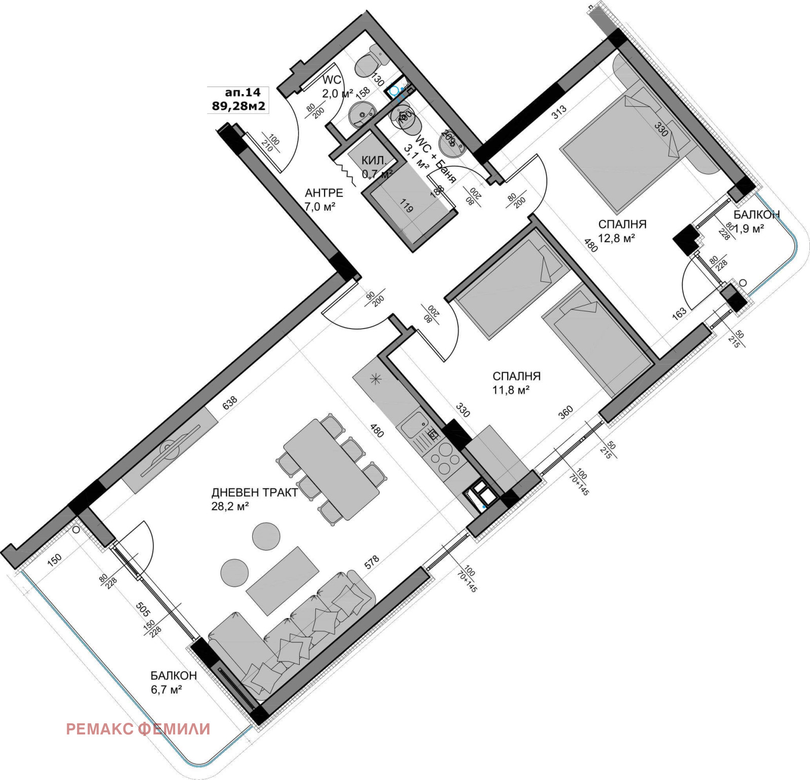
Апартамента е с обща площ от 102 кв.м., чиста площ 89 кв.м. и има следното разпределение: просторна дневна 28 кв.м., 2 спални по 12 и 13 кв.м., антре 7 кв.м., баня с тоалетна 3 кв.м., отделна тоалетна 2 кв.м., до тях килер 1 кв.м., балкон с излаз от едната спалня 2 кв.м. и балкон с излаз от дневната 7 кв.м.
Можете да изберете подходяща за вас схема на разсрочено плащане:
1. / Вариант 1: 50/30/20/0, т.е. 50% при подписване на Предварителен договор, 30% - при подписан Акт Обр. 14 и 20% - при подписан Акт Обр. 15. Посочената офертна цена 134000 евро е при Вариант 1.;
2. / Вариант 2: 20/0/80/0 20% при подписване на Предварителен договор, 80% - при подписан Акт Обр. 15 Цената на апартамента при този вариант е 156543 евро.
Има възможност да закупите подземни паркомяста в сградата на цен: 14000 евро при схема на плащане Вариант 1 или 15000 евро при схема на плащане Вариант 2, в зависимост от вашият избор. Дворните паркоместа са по 10000 евро.
Сградата е в процес на изграждане. Строителството е стартирало на 27.11.24 г. Предвидени са срокове на изпълнение за всеки етап: до 312025 Акт 14, до 31.12.2026 Акт 16, до 31.03.2027 Разрешение за ползване.
Апартамента ще бъде завършен по БДС: вътрешни стени - тухла с гипсова мазилка; тавани гипсокартон, под на стаите - циментова замазка; баня и тоалетна: под циментова замазка, стени вароциментова мазилка; ел. инсталация: завършена напълно до ключове, контакти, оптичен кабел до апартамент; В и К инсталации: завършени до тапа; изградени тръбни връзки за монтаж на климатици, на определени по архитектура места; външна врата блиндирана; прозорци: висококачествена PVC дограма с двойни стъклопакети.
Сградата е проектирана с внимание към детайлите, като осигурява уют и комфорт за живущите. Висококачествените материали и съвременните технологии, влагани в строителството гарантират дълготрайност и енергийна ефективност.
Пространството около сградата ще бъде облагородено със зелени площи, пешеходни алеи и детска площадка.
Лесният достъп до транспортни връзки и градски услуги прави този жилищен комплекс отличен избор за градски живот.
Виж всички обяви в remax-family.bazar.bg или тук
        
       
         
         
         
         
         
             
             
             
             
            






