ТОПИММО предлага за продажба тристаен апартамент в нова сграда пред Акт 15 в м-т Акчелар.
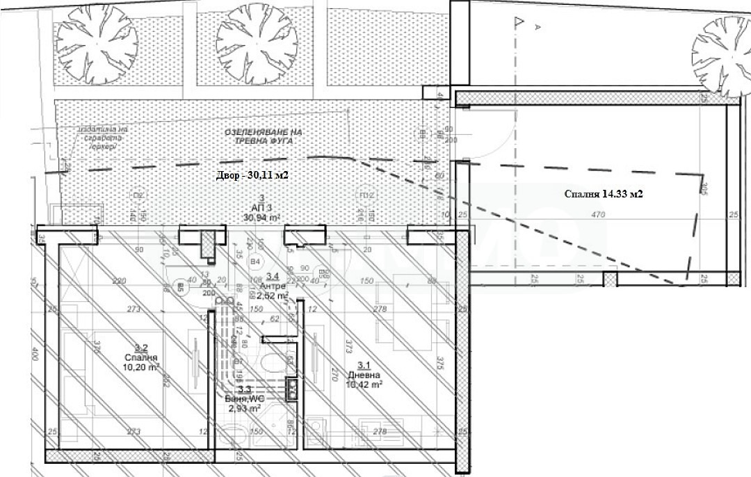
Апартаментът е с площ от 54 кв.м. и се състои от антре, дневна, 2 спални, баня с тоалетна, килер и прилежаща земя 30,11 кв.м. по нотариален акт.
Имотът е завършен по БДС, седемкамерна ПВЦ дограма /Кьомерлинг/ с троен стъклопакет, нивелирана подова замазка, шпакловани стени, монтирани ключове и контакти.
При строителството има поставен фибран на всяка плоча, което осигурява допълнителна топло и шумоизолация.
Общите части ще са луксозно завършени - стълбищата изработени от дялан камък , парапети от инокс, хидравличен и безшумен асансьор, 10 сантиметра външна изолация от стиропор, външна мазилка /BAUMIT/, покрив със седем слоя хидро и топлоизолации.
Възможност за покупка на паркомясто 25 000 евро.
Използвайки нашите услуги за покупката на новия си дом ще получите съдействие и БЕЗПЛАТНА професионална консултация от наш кредитен консултант.
Можем да организираме оглед в удобно за вас време, свържете се с нас! Референтен номер: AP-4222







