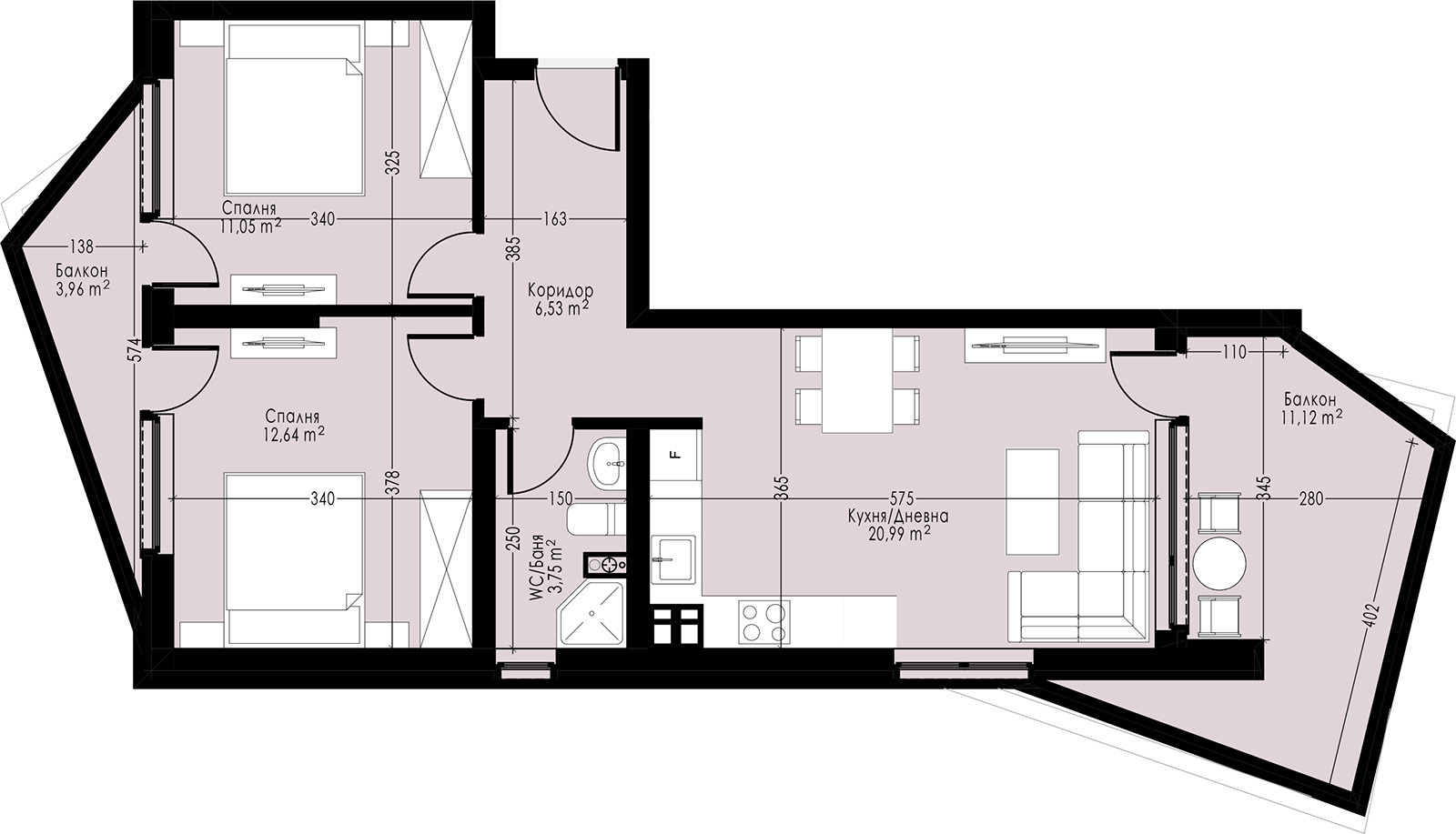
Жилището е разположено на етаж 3 и се състои от: коридор- 6,53 кв.м, днвена - 20.99 кв.м с излза на балкон - 11,12 кв.м, спалня 1 -12,64 кв.м, спалня 2 - 11,05 кв.м, втори балкон - 3,96 кв.м и баня с WC - 3,75 кв.м.
Комплексът е разположен срещу най- новият градски парк на Варна Възраждане , а пред него се намира автобусната спирка на градския транспорт. В непосредствена близост се намират магазин Kaufland, Lidl, плувен басейн Делфинче , както и много детски градини.
Към цената на апартамента има включени 2 паркоместа.
ПРЕДИМСТВА:
Модерна и устойчива архитектура;
Сертифицирани висококачествени материали;
Бърз и лесен достъп до централната част на града;
Просторни и функционално разпределени апартаменти;
Виж всички обяви в komfortbrokers.bazar.bg или тук
        
       
         
         
         
             
             
            






