ВИНИЦА,НА ТИХО И СПОКОЙНО МЯСТО!!! ТРИСТАЕН ТУХЛЕН АПАРТАМЕНТ!!! НОВОПОСТРОЕНА СГРАДА С АКТ 15 !!! ДОКАЗАН СТРОИТЕЛ!!!
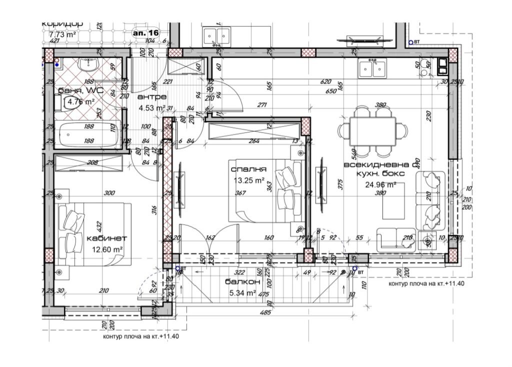
Варна Естейт предлага на Вашето внимание тристаен тухлен апартамент с площ от 97 кв.м., намира се на трети етаж ви новопостроена сграда,
Има следното разпределение: антре, дневен тракт с кухненска част, спалня, кабинет, тераса, комбиниран санитарен възел.
Имотът ще бъде издаден по БДС. В момента сградата е с АКТ 15!!!
Кварталът е с отлично изградена инфраструктура: супермаркети и магазини, ресторанти , училище, детска градина, паркове и детски площадки, 2 медицински центъра, ветеринарна лечебница, аптеки, бензиностанции, кметство, клон на банка, конна база.
За повече информация и огледи. Реф. номер: 9912
Брокер: Дарина Иванова
Тел. номер: 0877 240 281







