✔С АКТ 14! ✔Схема на плащане - 20% на договор и 80% на АКТ 16! ✔Висококачествени съвременни системи и материали! ✔ Гарантирана цена до Акт 16!
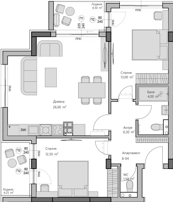
➡ Апартаментът се състои от антре, баня с тоалетна, отделно тоалетна, 2 спални, дневна с кухня и трапезария, 2 тераси и е с обща площ от 99,51 кв.м.
В сградата се предлагат двустайни и тристайни апартаменти.
✔Локация: ул. Рая, кв. Христо Смирненски
✔Схема на плащане
Предлага се индивидуална схема на плащане, съобразена с финансовите възможности на всеки клиент.
✔Срок на завършване: декември 2027 г.
✔Основни характеристики и предимства:
-Алуминиева дограма тип Reynaers с френски прозорци и трислоен стъклопакет
-Вентилируема фасада с алуминиеви композитни панели (еталбонд) в два контрастни цвята - светъл и тъмен
-Топлоизолация с каменна вата
-Озеленени зони с места за отдих
-Луксозно изпълнени общи части с модерен дизайнерски подход
-Блиндирани входни врати
-Инсталационна подготовка за термопомпа
-Възможност за подово отопление
-Възможност за система Умен дом
-Възможност за поставяне на комарници
✔Паркинг: Възможност за покупка на паркоместа и гаражи.
➡Alpha Real Estate, специализиран посредник на водещите строителни фирми, член на Националната браншова организация НСНИ. За още предложения ново строителство в гр. Пловдив посетете нашия сайт: https://alphaestate.bg
Реф. 7020







