Translations in other languages:
All real estate ads published on imot.bg have been translated into English and published on the partner site
Получихте нова обява по филтър





Промяна на цена на наблюдавана обява


стара цена
нова цена
imot.bg – обяви за продажби и наеми на имоти
Сайт за имоти №1
Translations in other languages:
All real estate ads published on imot.bg have been translated into English and published on the partner site
ДОБАВИ ОБЯВА Редакция на обява
Начало Публикуване Търсене Нови сгради Агенции Новини Кредити + Още... Моят имот
Продава 3-СТАЕН
град Варна, Аспарухово
ул. Борис Киряков 4
137 763 €
269 441.01 лв.

(1 392 €, 2 722.52 лв./m2)
Цената е с включено ДДС
История на цената
Коригирана в 8:58 на 1 септември, 2025 год.
Обявата е посетена 614 пъти.
Площ:
99 m2
Етаж:
3-ти от 6
Строителство:
Тухла, Ще бъде въведен в експлоатация 2027 г.

Описание на имота:


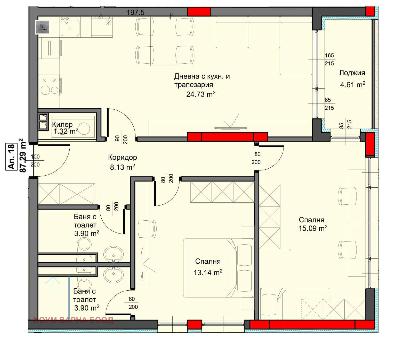
ДИРЕКТНО ОТ ИНВЕСТИТОР! Строителна фирма Хоум Варна ЕООД продава апартаменти и паркоместа в жилищна сграда в кв. Аспарухово, ул. Борис Киряков 4. На шест жилищни етажа са разположени 16 двустайни, 16 тристайни и 1 четиристаен апартаменти. На разположение на живущите ще бъдат 17 подземни и 19 дворни паркоместа. Отличен достъп, улично осветление и страхотна панорама към морето и града. Стартирало строителство. Етапи на завършване: Акт 14: март 2026 г., Акт 15: ноември 2026 г., въвеждане в експлоатация март 2027 г. БЕЗ ТАКСА ПОДДРЪЖКА. Апартаментът A-18 се състои от 2 спални, дневна с кухненски бокс и трапезария, 2 бани с тоалетна, килер, коридор и лоджия. Имотът е с обща площ 99,11 кв.м, което включва 87,29 кв.м чиста жилищна площ и 11,82 кв.м общи части. Посочената цена e при схема на плащане 50/40/0/10. За повече информация: https://homevarna.bg/building/panorama-asparuhovo/
Виж всички обяви в homevarna.bazar.bg или тук
Особености
Тухла
Асансьор
С паркинг
За контакт:
0988989956
Строителна фирма:
ХОУМ ВАРНА ЕООД
0988989956
ХОУМ ВАРНА ЕООД logo
Медал за прослужено време
В imot.bg от 2022 г.
homevarna.imot.bg
Адрес:
област Варна, гр. Варна, ул. Петко Стайнов 5
http://homevarna.bg
ИЗПРАТИ ЗАПИТВАНЕ
ИЗПРАТИ ЗАПИТВАНЕТО

Продава 3-СТАЕН
град Варна, Аспарухово
ул. Борис Киряков 4
Обява: 1c175396437603890

137 763 €
269 441.01 лв.
История на цената
(1 392 €, 2 722.52 лв./m2)

Цената е с включено ДДС
ЗАПАЗИ ОБЯВАТА

Местоположение: град Варна, Аспарухово, ул. Борис Киряков 4

Виж още имоти от Варна или още Тристайни Апартаменти във Варна
Допълнителни данни за имотите в района и сравнение с други райони: Търсене в АРХИВ 2013 - 2025 г.











Добави/редактирай
вид имот и район
*Средните цени са определени чрез медиана стойност.
Още обяви в imot.bg
КОНТАКТИ | SMS КОДОВЕ | СТАТИСТИКА | ПОМОЩ | ОБЩИ УСЛОВИЯ | РЕКЛАМА | ТОП ОФЕРТА | Въпроси и предложения към imot.bg
Резон Медия | Имоти | Автомобили | Работа | Новини | Обяви | Преводи и легализация 2002-2025 ® Copyright imot.bg
© imot.bg ползва и препоръчва хостинг услугите на Bulinfo.net
Следвайте ни в: