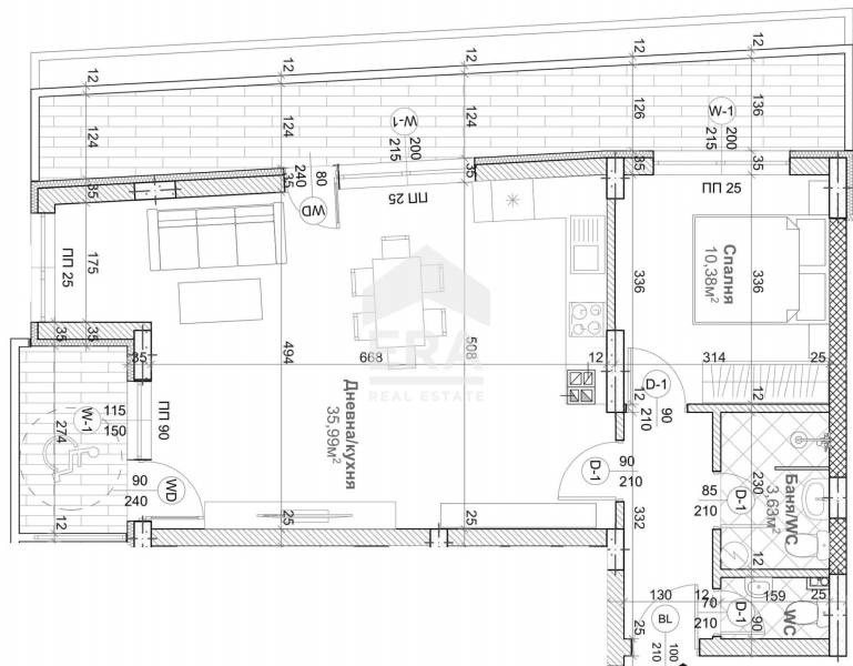
ЕРА Вива продава тристаен апартамент в новострояща се жилищна сграда в кв. Левски, гр. Варна. Жилището е със застроена площ от 90 кв.м. /107.97 кв.м. с общите части/ и е разположено на пети етаж. Имотът е функционално разпределен, включващ дневна с кухненски кът, спалня, втора спалня, баня с тоалетна и балкон. Степен на завършеност по БДС - на шпакловка и замазка, с поставена ПВЦ дограма и блиндирана входна врата. Отоплението е предвидено на ток.
Mодерна новострояща се сграда, която ще впечатли с изключителен стил и качество. Сградата ще разполага с асансьор и домофонна система за удобство и сигурност на живущите. Освен това, има възможност за закупуване на паркомясто. Използваните материали и технологии са съобразени с последните иновации в строителния бранш, гарантирайки устойчивост и енергийна ефективност. Очаквано въвеждане в експлоатация 2026 г.
Район с отлично изградена инфраструктура. В близост до УМБАЛ Света Марина, Втори корпус на Икономически университет, детска градина, магазини, ателиета за услуги и спирки на градския транспорт.
Оферта 1009551







