ГЪВКАВИ СХЕМИ НА ПЛАЩАНЕ! СГРАДА НОВО ПОКОЛЕНИЕ!
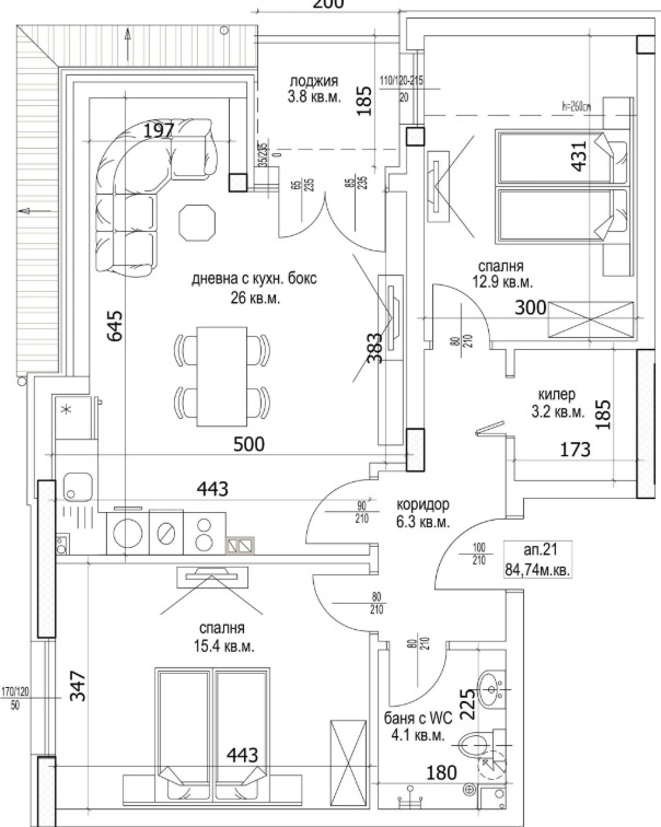
INclusive представя страхотен тристаен апартамент с площ от 104 кв.м, разположен в едно от най-предпочитаните места за живеене в Цветен квартал. Жилището се намира в новостроящ се комплекс с планирано завършване през 2027 г. и впечатлява с модерен дизайн, качествени материали и комфортна жилищна среда.
Имотът включва просторна дневна, две спални, една баня с тоалетна, килер и един балкон, идеален за сутрешно кафе или вечерен отдих. Сградата разполага с асансьор, което осигурява допълнително удобство за бъдещите собственици.
Апартаментът е подходящ както за лично ползване, така и за инвестиция, благодарение на отличната локация и високото качество на изпълнение.
Ще бъде издаден по БДС.
Има възможност за закупуване на паркомясто.
Цветен квартал се отличава с тиха и подредена среда, съчетана с близост до центъра, търговски обекти, училища, паркове и спирки на градския транспорт идеален избор за градски начин на живот.
Свържете се с нас за повече информация и оглед се обадете на 0875366328, като цитирате следния код: 13582.







