🏡'ГОЛД ИМОТИ' Ви предлага тристаен апартамент в новоизградена жилищна сграда, в кв. Тракия, пред АКТ 16!
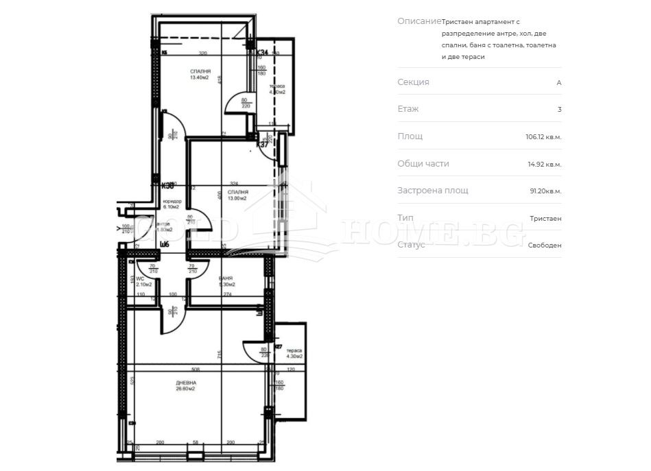
✅ Апартаментът се сътои от: входно антре, хол с трапезария и кухненски бокс, две спални, две мокри помещения, две тераси!
✅ Избеното помещение не е включено в квадратурата и се закупува допълнително!
✅Сградата се изгражда от ДОКАЗАНА СТРОИТЕЛНА ФИРМА НА ПАЗАРА!
✅ Завършване на жилищата по БДС: шпакловка и замазка, ел. инсталация до ключ, ВиК до тапа, външна блиндирана врата- устойчива на пожари, висок клас - ПВЦ дограма.
✅За сградата ще бъде използвана енергийно ефективна, фасадна изолация!
🚗С възможност за закупуване на гараж или свободно паркиране около сградата!
✅Пусков срок - края на 2025 година!
✅Намира се на комуникативна локация, близо до ФОРУМ - Тракия.
➡️'ГОЛД ИМОТИ' Ви предлага да се възползвате от професионално кредитно посредничество чрез Credit Center при ипотека, потребителски кредит и рефинансиране!
-УСЛУГАТА Е ИЗЦЯЛО БЕЗПЛАТНА!
-ИЗГОТВЯНЕ НА НЯКОЛКО ОФЕРТИ ОТ ВОДЕЩИ БАНКИ!
-НАЙ-ИЗГОДНИ УСЛОВИЯ СПРЯМО ВАШИЯТ ПРОФИЛ!
-НЕ Е НЕОБХОДИМО ДА СЕ РАЗКАРВАТЕ ВЪВ ВСЕКИ КЛОН НА РАЗЛИЧНИ БАНКИ!
📞За повече информация и при интерес за оглед, моля свържете се с нас!
Виж всички обяви в gold_imoti.bazar.bg или тук
        
       
         
         
             
            






