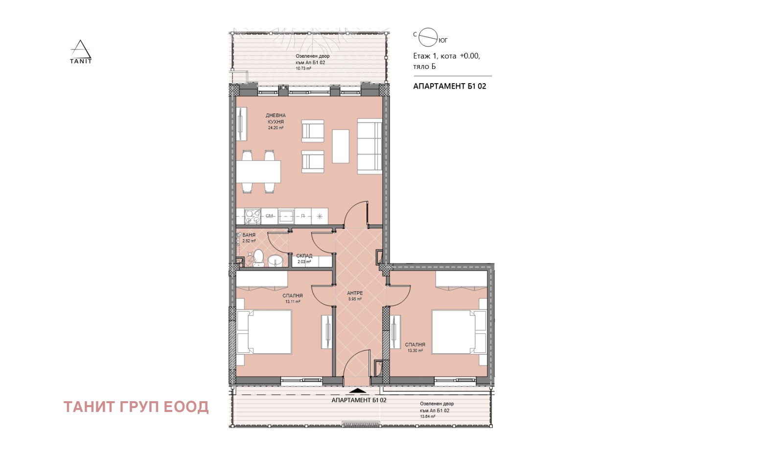
Предлагаме за продажба ап. Б1 02, тристаен, на партера (кота +0,00м.) с РЗП 75 кв.м. (116кв.м. с вкл. общи части, вкл. 24кв.м. двор и 3 кв.м. склад) в сграда Lion Hill етап 2 на цена 199 000 евро. Ап. Б1 02 има отделен вход, директно от тротоара, което му позволява да се използва за офис, стоматологична клиника, лекарски кабинет, фризьорски салон, козметично студио, детски център или др. Свободни са и съседните два апартамента, ап. Б1 01 (РЗП с общи части и тераса 89 кв.м., цена 154 000 евро) и ап. Б1 03 (РЗП с общи части и тераса 108 кв.м., цена 189 000 евро), които биха могли да се обединят с ап. Б1 01, за да се получи по-просторен обект. В съседство на партера на етап 1 ще бъде и новият офис на нашата фирма. В сградата има възможност да се закупят и паркоместа - разгледайте всички свободни обекти на уебсайта ни tanit.bg.
Сграда Lion Hill се изпълнява с най-висок клас материали, като целта ни е да се откроява с по-високо качество на изпълнение от сградите в района. По този начин искаме да осигурим максимален комфорт на собствениците, ниски сметки и дългогодишна безпроблемна експлоатация.
Зидариите се изграждат с най-висококачествени тухли на Wienerberger, а фасадата на сградата да бъде изпълнена с топлоизолация и мазилка на Baumit. Цялостното решение за фасадата на сградата е замислено да предложи топлоизолация и шумоизолация от най-висок клас, както и по-ниски разходи за отопление и охлаждане.
За Вас сме избрали най-висок клас 7-камерна дограма на световния лидер Schüco, сертифицирана по стандартите за пасивни къщи в Германия, с троен стъклопакет и стъкло четири сезона, топъл дистанционер и транспортен профил. Входните врати на апартаментите ще са на лидера в областта Solid 55. Отоплението е предвидено да бъде с климатици, а топлата вода на електрически бойлери. Общите части на сградата ще бъдат изградени по дизайнерски проект. Предвиден е контрол на достъпа до сградата с лицево разпознаване и видеонаблюдение на общите части за максимална сигурност. В двора на сградата ще бъде изградено просторно озеленено пространство за почивка и игри с контролиран достъп само за собствениците.
Екипът, отговорен за проектирането и изпълнението на сградата, е съставен от доказани професионалисти с дългогодишен опит и десетки реализирани жилищни сгради, построени стотици хиляди кв.м. РЗП и множество награди за Сграда на Годината и Фасада на Годината. Както и за останалите проекти на Танит Груп, главен изпълнител на сграда Lion Hill са нашите партньори от фирма Юнимекс, главен проектант е арх. Иван Моев и студио Топ Арх.
Сграда Lion Hill се намира в гр. София, кв. Левски Г, ул. Могилите 7, срещу бл. 4. Ние вярваме, че кв. Левски Г все повече ще се утвърждава като предпочитано място за живот, благодарение на изградената улична инфраструктура, наличието на детски градини и училища, близостта си до центъра на гр. София и отличната транспортна свързаност.
На пешеходно разстояние от сграда Lion Hill се намират 199 Основно Училище 'Св. Апостол Йоан Богослов, две общински детски градини, както и частни детски центрове. На 5 минути пешеходно разстояние е новият магазин от верига Фантастико, а магазин Билла е на около 7 минути пешеходно разстояние.
С автомобил разстоянието от сграда Lion Hill до ЦУМ и Президентството се изминава за около 15мин., благодарение на директната връзка посредством бул. Владимир Вазов. Близостта до Околовръстния път и Северната скоростна тангента (и в частност очакваното започване на строителството на директна връзка към нея) също спомагат за лесния достъп до кв. Левски Г.
През 2026г. се очаква да разширението на третата линия на метрото, което значително ще улесни достъпът до центъра на гр. София. Сграда Lion Hill е на пешеходно разстояние от около 650 м. от третата станция на новостроящия се участък МС Генерал Владимир Вазов. От там за 10 минути ще се стига до парка Заимов и Орлов Мост.
Изграждането на сграда Lion Hill етап 2 започна м. юли 2025г., акт 14 е предвиден за втората половина на 2026г., акт 15 за 2027г., а непосредствено след това и въвеждането в експлоатация с акт 16 и разрешение за ползване на етап 2.
Строителството на сграда Lion Hill е изцяло обезпечено финансово със собствени средства и банково финансиране от началото на строителството до акт 16, като по този начин изцяло сме премахнали риска за нашите клиенти. Финансовото обезпечаване на проекта ни позволява да предложим разнообразни схеми на плащане, с нуждите на всеки клиент.
Виж всички обяви в tanit.bazar.bg или тук



