Без комисиона!!!
Представяме ви тристаен апартамент в близост до Метростанция!
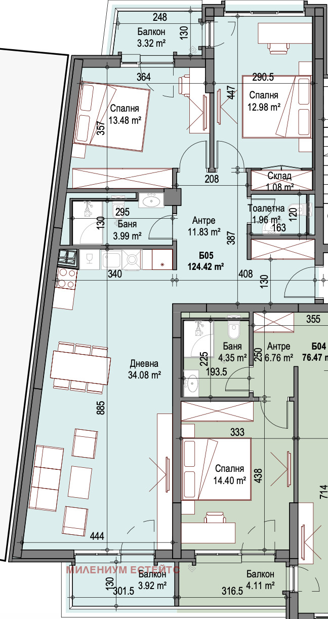
Разпределение: входно антре, всекидневна с кухненски бокс, 2 спални, склад, баня с тоалетна, тоалетна и балкон.
Етап: пред акт 15; акт 16 - 12.2026 г.
Изложение: южна всекидневна - северни спални
Сградата е в близост до метростанция Хаджи Димитър, както и на 10 мин от метростанция Театрална. Апартаментът ще бъде издаден с изводи за климатици, радиатори ТЕЦ и подово отопление в банята.
В сградата се продават по-големи апартаменти, паркоместа и гаражи.
За повече информация се обадете на посочения телефон.
Отговорен брокер: Михаел Орачев







