Имот на морето продава директно от инвеститора и без комисионна от купувача ТРИСТАЕН АПАРТАМЕНТ с фронтална гледка море в новостроящ се затворен комплекс в гр. Царево!
Комплексът е проектиран с елегантна и модерна визия създаваща усещане за комфорт и уют, разполага с три асансьора, подземен гараж и надземни паркоместа, с които обезпечава паркирането на 110%.
Разположен е над Централния плаж на гр. Царево, от където се разкриват живописни гледки към морето!
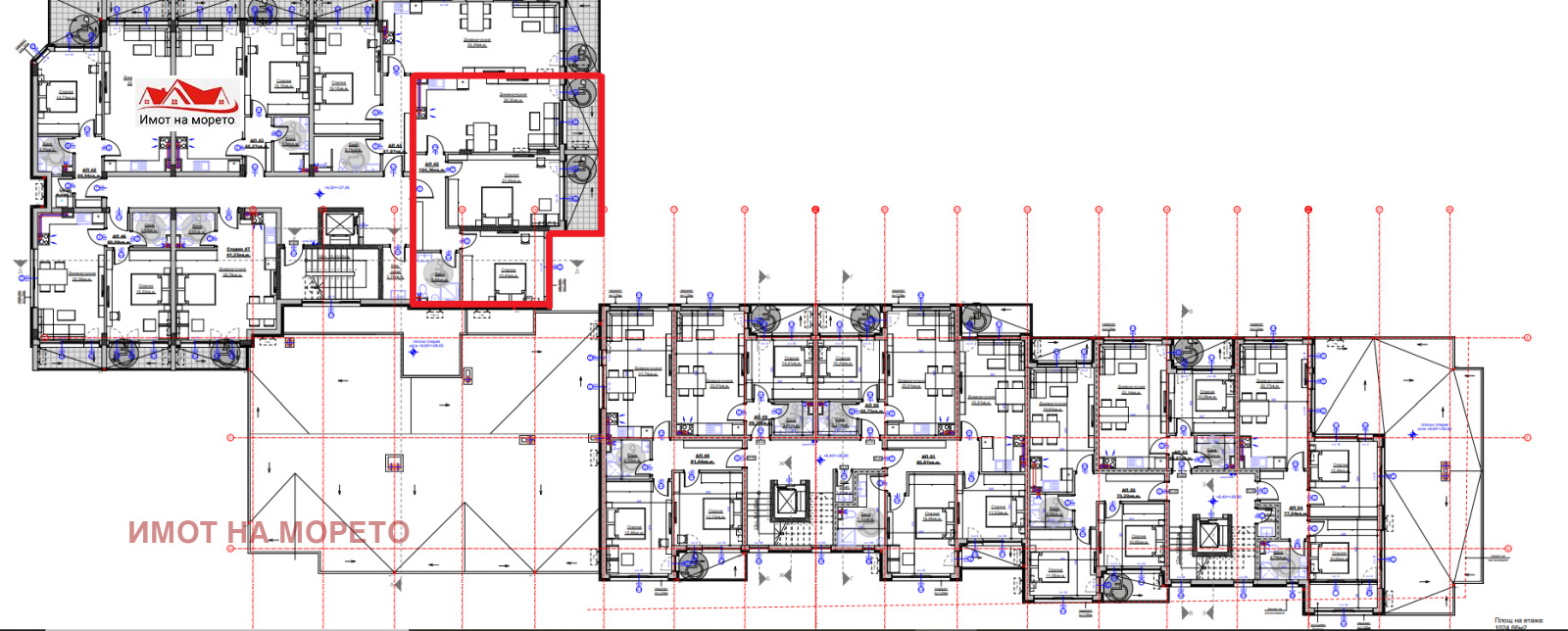
Жилището е с площ 119,05кв.м., разположено е на четвърти етаж и има следното разпределение: коридор, просторна всекидневна с кухненски бокс, две спални, комбиниран санитарен възел и две тераси. Издава се със степен на завършеност на тапа .
Такса поддръжка: 70,00лв. на месец.
Акт 14 2025г.
Акт 16 2026г.
Цена на гараж: 20 000 евро.
Цена на надземно паркомясто: 11 000 евро.







