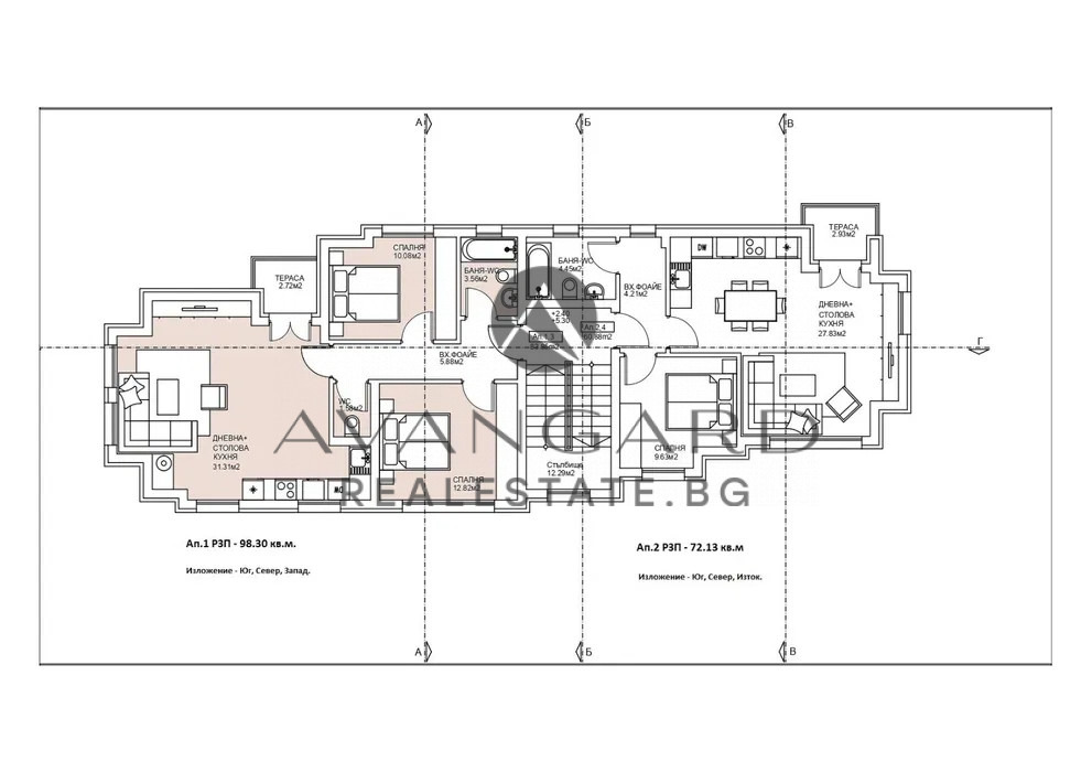
ТОП ЛОКАЦИЯ! С АКТ14! Предлагаме Ви ДВУСТАЕН АПАРТАМЕНТ в НОВОСТРОЯЩА СЕ МАЛКА БУТИКОВА СГРАДА в кв. БЕЛОМОРСКИ. Апартаментът разполага със ПРОСТОРНА ВСЕКИДНЕВНА С КУХНЯ И ТРАПЕЗАРИЯ, ДВЕ СПАЛНИ, БАНЯ С ТОАЛЕТНА, ВХОДНО АНТРЕ И ТЕРАСА. Жилището ще бъде издадено на шпакловка и замазка, което Ви позволява да го отремонтирате и обзаведете по Ваш собствен вкус. Намира се в тих и спокоен район в близост до всичко необходимо за живеене, което го прави чудесен избор за Вашият нов дом.
Авангард Риъл Естейт предлага Висока сигурност при покупка на имот и цялостно съдействие до финализиране на сделката пред нотариус. За контакт: email: [email protected]; За още актуални оферти: www.avangardrealestate.bg
Виж всички обяви в avangardimoti.bazar.bg или тук







