'Елиз дом' предлага на вашето внимание тристаен апартамент в бутикова сграда, с отлична локация в близост до Окръжна болница и супермаркет Лидъл, на пешеходно разстояние от Морската градина и центъра на Варна.
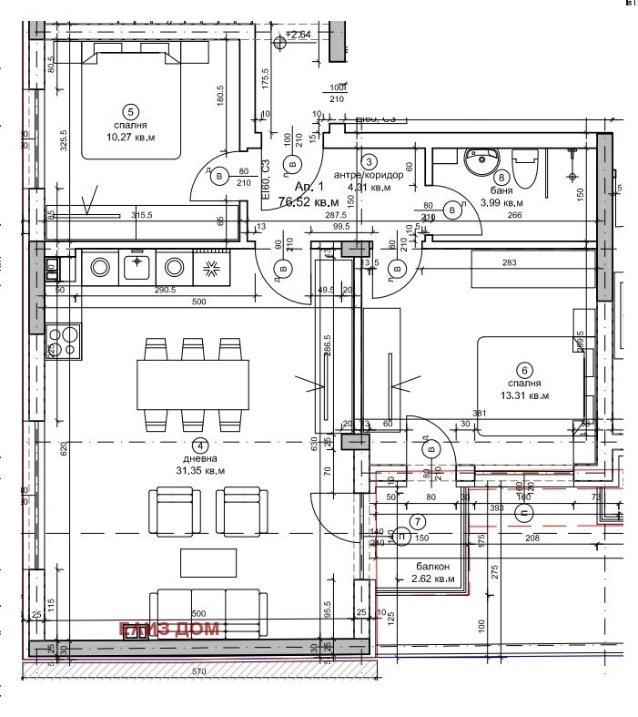
Апартаментът е на 2-ри от общо 7 етажа, с обща площ 91 кв.м. Състои се от дневен тракт, две спални, баня с тоалет, антре и тераса; маза. Степен на завършеност - БДС. Статут на апартамент.
Чудесно предложение за собствен дом или имот с висок потенциал за отдаване под наем!
Възможност за закупуване на паркомясто в двора на сградата.
Сградата е с Акт 14. Въвеждане в експлоатация /Акт 16/: юни 2026 г.
'Елиз дом' предлага и друг тристаен апартамент в сградата на по-висок етаж.
Още предложения от 'ЕЛИЗ ДОМ' можете да разгледате на www.eliz-dom.com







