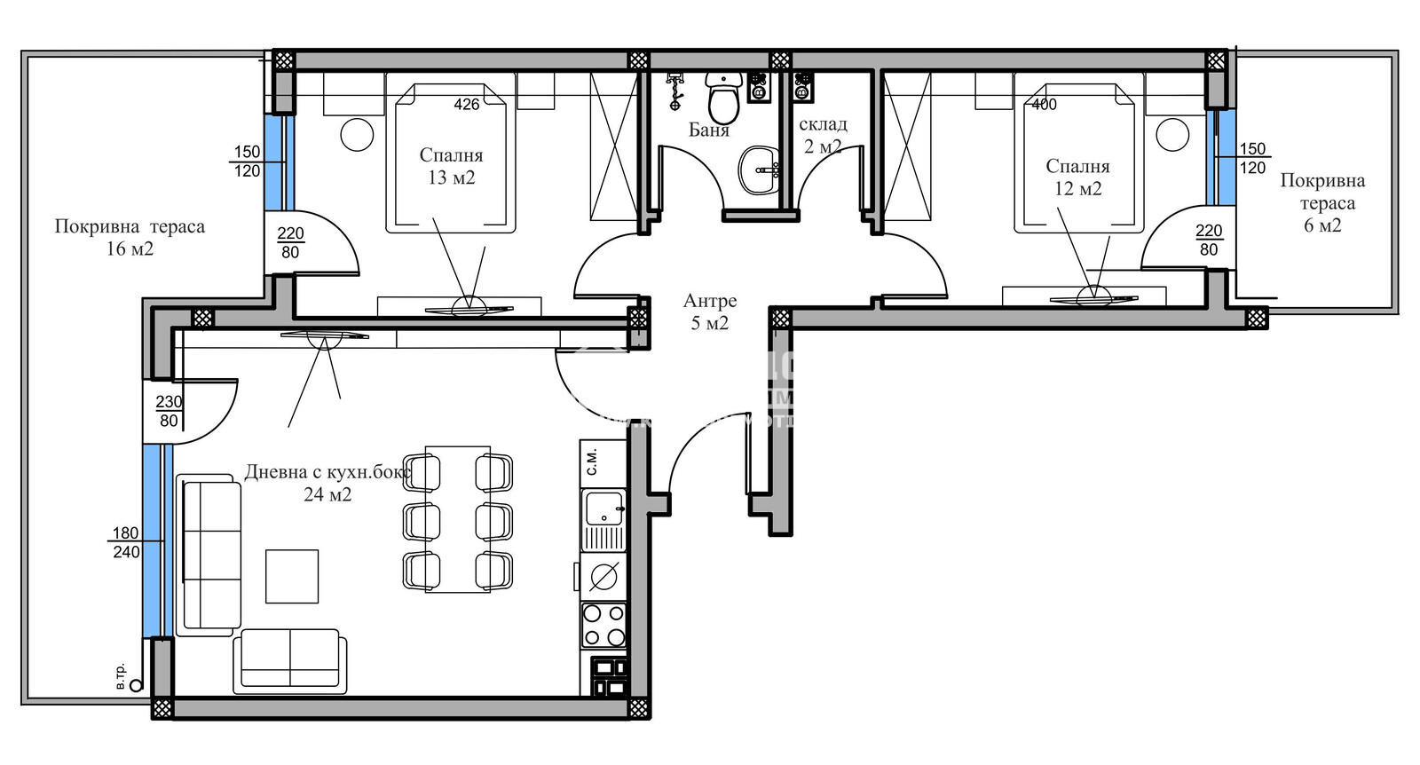
Оферта 67311:Представяме Ви тристаен апартамент в новоизграждаща се малка сграда, проектирана така, че да създаде максимален комфорт и уют в един от най-бързо развиващите се райони с лесен и удобен достъп и транспорт към Центъра на града. Жилището се състои от 24кв.м. дневна с кухненски бокс и трапезария, две самостоятелни спални с площ от 12 и 13кв.м., баня с тоалетна, втори санитарен възел, перално помещение, входно антре и две панорамни тераси. Сградата се намира на тихо и спокойно място в близост до всички необходими комуникации. Обектът се строи от фирма с доказан опит, като разполагаме с готови сгради и можем да Ви покажем качеството на изпълнение, което се осъществява с висококачествени материали и съвременни технологии, по европейски стандарт, петкамерна PVC дограма, червена Австрийска Тухла, масивна Блиндирана входна врата с 4-странно заключване, сензорно осветление, хидравлични асансьори с огледална кабина. Свободни паркоместа в двора на цена от 13 000 евро!!! Възможност за Закупуване чрез Банков Кредит или разсрочено изплащане по време на строителството !!! Приложените снимките в Галерия са взети от други готови сгради на строителя, за да придобиете представа за нивото на което се издават жилищата. Възползвайте се от възможността да живеете в малка сграда на спокойно място !!!
ВИЖТЕ ОЩЕ ИЗГОДНИ ОФЕРТИ НА https://www.kondorimoti.com/ С ЕЖЕДНЕВНА АКТУАЛИЗАЦИЯ!







