ОФЕРТА-27150;ЕКСКЛУЗИВНО САМО ПРИ НАС!!! ТРИСТАЕН АПАРТАМЕНТ В ЕДИН ОТ НАЙ ОЗЕЛЕНЕНИТЕ КОМПЛЕКСИ НА ПЛОВДИВ!!! Разполага със собствен фитнес,басейн,магазини намира се между парк Лаута и Пощата
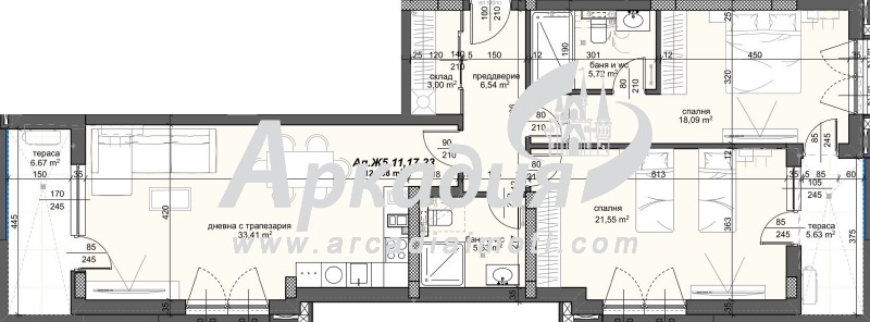
Апартамента се състои от дневна с кухненски бокс / 34 кв.м./, две спални по /22кв.м. и 18кв.м./ две бани с тоалетни по /5кв.м.м/ входно антре,склад и две тераси. Предлага се завършен на шпакловка и замазка, ПВЦ-дограма с петкамерен стъклопакет, вътрешни интериорни врати, външна блиндирана врата.
Строителството е прецизно, осъществява се по европейски стандарти, съобразено с последните изисквания за качество и енергийна ефективност:червена тухла, хидро и топлоизолация, хидравлични асансьори, луксозно завършени вътрешни, външни парапети и общи части.
Строителната фирма е един от лидерите на пазара, с множество завършени сгради. При проявено желание, нашите клиенти биха могли лично да се убедят в качеството на използваните материали. За огледи: Атанас Копарански - 0879056451 Вижте още наши предложения www.arcadiaimoti.com.







