Фази на строителството
Проектът ще бъде реализиран на 5 етапа, всеки със срок около 30 месеца.
СТАРТ на ЕТАП I : август 2025 г.
ЗАВЪРШВАНЕ Етап I (Акт 16): до януари 2028 г.
Етап 1 ще включва:
9 сгради с разнообразна етажност и функционални разпределения
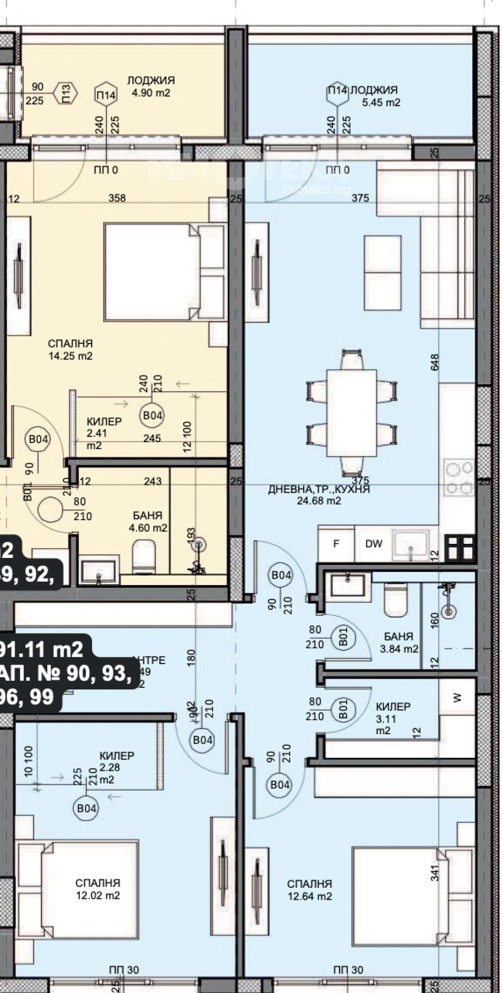
1-стайни, 2-стайни, 3-стайни и 4-стайни апартаменти
Всички с панорамна гледка още от приземния етаж
Апартаменти на партерно ниво със самостоятелни дворове
В две от сградите до входа на комплекса са предвидени:
Хранителен магазин
Детска занималня
Кафе-сладкарница
Дентален център
Салон за красота
(Достъпни и за външни посетители)
Паркиране:
Подземни паркинги с топла връзка и асансьор до всяка сграда
Паркоместа за електромобили
Външни паркоместа до търговските обекти
Цени на апартаментите започват от 1500 Евро/ кв.м
Лице на главния път за кв. Галата обновен с две автобусни спирки и две линии на градски транспорт
Само 5 минути от центъра на кв. Аспарухово с основно, средно училище и гимназия
Само на 15 минути от центъра на гр.Варна
Богато озеленен комплекс
Детска занималня
Велоалеи и алеи за разходка
Детски площадки и спортни игрища
Зони с BBQ за срещи с приятели
Кафе-сладкарница, ресторант и скай-бар
Амфитеатър, хотел и офис сграда
Спортен център с плувен закрит басейн, фитнес и зали за събития
... Обади се сега и цитирай този код 658617
Виж всички обяви в imotekavarna.bazar.bg или тук







