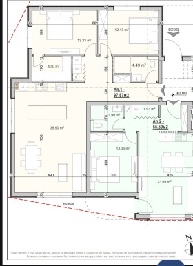
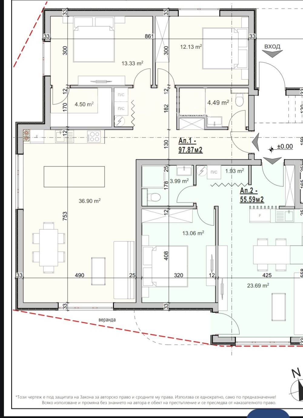
Тристаен апартамент в Галата само на метри от плажа!
Представяме Ви просторно жилище с отлично разпределение и локация на партерен етаж в нова сграда, буквално на крачка от стълбичките към плажа на Галата!
Площ: 105 кв.м., две спални - 12 кв.м. и 13 кв.м., дрешник 4.5 кв.м., дневен тракт - 37 кв.м..
Нова сграда на метри от морето - идеално за целогодишно живеене или ваканционен имот. Завършеност: по БДС. Гъвкава схема на плащане - по-лесна стъпка към мечтания дом.
Обади се сега и цитирай този код 652355
Виж всички обяви в imotekavarna.bazar.bg или тук







