Предлагаме за продажба 3-стаен апартамент в сграда на доказал се строител с множество завършени обекти в района. С добра локация - на ул. Проф. Живко Сталев, близо до ул. Георги Русев.
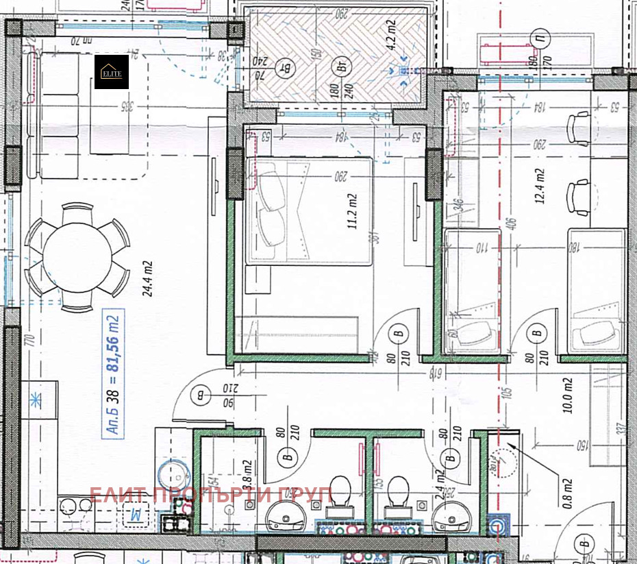
Жилището е със застроена площ от 81 кв. м и се състои от коридор, дневна стая с трапезария и кухненска част, две спални, две бани с тоалетни и балкон.
Пусков срок: 12.2026 год.
С възможност за закупуване на подземни гаражи в сградата на цени от 30 000 евро!
Продават се още 1-стайни, 2-стайни, 3-стайни и 4-стайни апартаменти в сградата.
За повече информация и огледи на тел: 0895954292 - Йордан Сухтев, 0888848141 - Николай Сухтев
Виж всички обяви в epgbroker.bazar.bg или тук
        
       
         
         
         
             
             
            


