ПРОМОЦИЯ!!! НЕПОВТОРИМ ПАНОРАМЕН ТРИСТАЕН БЕЗ КОМИСИОННА ДИРЕКТНО ОТ ИНВЕСТИТОРА.
Предлагаме просторен, слънчев и панорамен с гледка към Витоша триристаен апартамент ПРЕД АКТ 16 в нов луксозен затворен комплекс в Сердика (до зона Б-5) на бул. Акд. Иван Гешов .
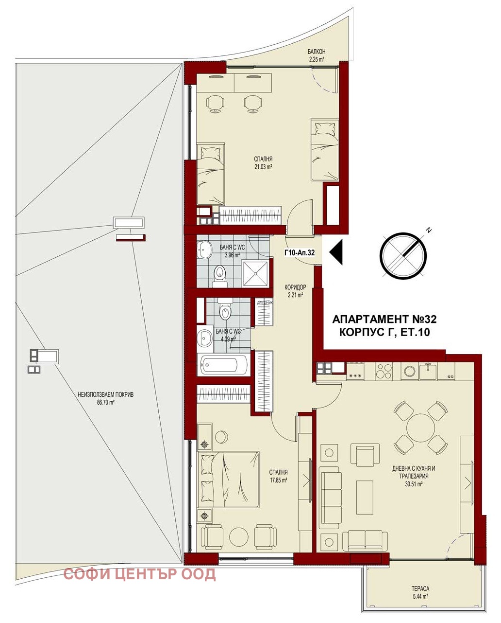
Площ на апартамента е 115,2 кв.м., общи части 17,48 кв.м. или общо 132,68 кв.м. и тераса от 85,97 кв.м или общо 218,65 кв.м.,
Апартаментът се състои от коридор с дрешник, просторна дневна със кухненски бокс с тераса, две спални, две бани с тоалетни и тераса. Завършване по БДС.
Изложението е уникално - югоизток-северозапад. С гледка към басейна.
Затвореният комплекс е със собствен и просторен парк с плувен басейн, фитнес със сауна, подземен паркинг с паркоместа. Осигурена е 24-часа охрана с видеонаблюдение и контрол на достъпа, почистване, техническа поддръжка на общите части и градинар за парка и басейна.
За повече информация www.soficenter.bg и за оглед тел. 0886230000.




