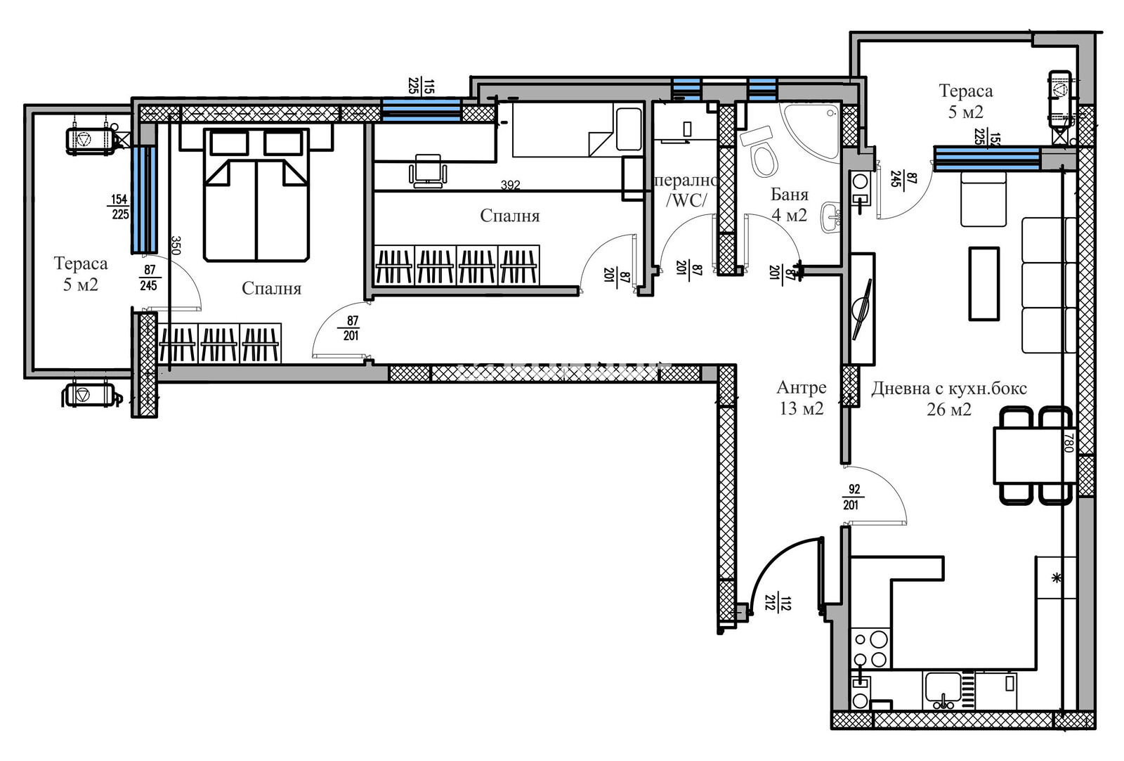
Разпределения - Предлагаме на Вашето внимание тристаен апартамент, състоящ се от дневна 26кв.м. с трапезария и кухненски бокс с излаз на тераса, две самостоятелни спални, баня с тоалетна, килер, входно антре и една тераса.
Материали - Жилищната сграда е изградена съгласно най-високите технологични изисквания за качество и лукс. Използваните материали са съобразени с най-новите тенденции в строителството - модерна външна облицовка, покривна и фасадна изолация, PVC пет камерна дограма и др. Функционалните общи части, допринасят допълнително за усещането за лукс и комфорт на обитателите.
Локация - Мястото в близост до училища детски градини, хранителни хипермаркети и удобен градски транспорт, допълнително внася комфорт в ежедневието на модерния градски човек.
Допълнителни екстри - За удобство на своите собственици, сградата разполага с възможност за закупуване на гаражи и паркоместа.
Начин на плащане - Кондор имоти предлага възможност за разсрочено плащане в рамките на строителството или банково финансиране от водещи банки на преференциални условия.ВИЖТЕ ОЩЕ ИЗГОДНИ ОФЕРТИ НА https://www.kondorimoti.com/ С ЕЖЕДНЕВНА АКТУАЛИЗАЦИЯ!
Виж всички обяви в kondor.bazar.bg или тук
        
       
         
         
         
         
             
             
             
            






