Предимства на имота :
- ЛОКАЦИЯ: Намира се в кв.'Христо Ботев' в близост до ОУ 'Елин Пелин' и ДКЦ - 5, на пешеходно разстояние от катедралния храм 'Свето Успение Богородично'.
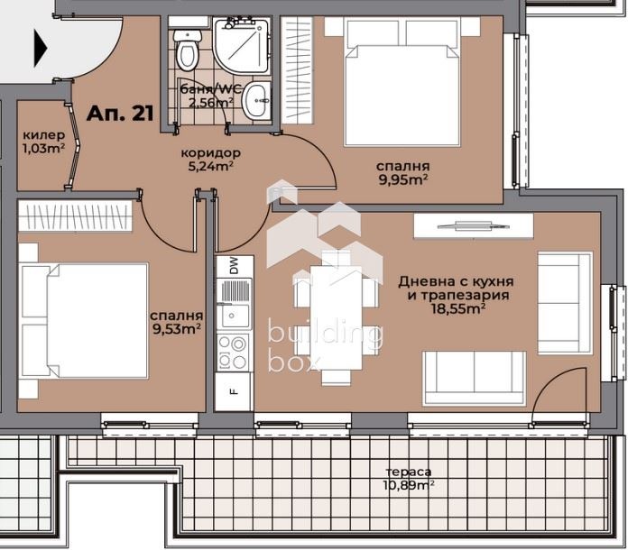
- РАЗПРЕДЕЛЕНИЕ: Правоъгълна всекидневна с френски прозорци с площ от 18.55 кв.м., една спалня - 9.95 кв.м., втора спалня - 9.53 кв.м. санитарен възел - 2.56 кв.м. и голяма тераса с излаз от две стаи, с площ от 10.89 кв.м., килер - 1.03 кв.м.
- ЕТАЖ: 6 от общо 8.
- ИЗЛОЖЕНИЕ: Изток/Юг
- ОТОПЛЕНИЕ: Електричество.
- ЗАВЪРШЕНОСТ: Предстои първа копка на сградата 01.07.2025 Краен срок за въвеждане в експлоатация на сградата - до края на 2027 г.
- ПАРКИРАНЕ: Налични са партерни подземни гаражи и паркоместа по избор.
- СТРОИТЕЛСТВО: Съвременна красива сграда с луксозни общи части и модерна визия. Един от водещите инвеститори в гр. Варна с портфолио от вече завършени сгради, които могат да бъдат разгледани като начин на изпълнение, качество, външен вид и стил.
Билдинг Бокс предоставя безплатна консултация и съдействие при финансиране на избрания от Вас имот.
Оферта 7793
Виж всички обяви в buildingbox.bazar.bg или тук







