ЖИЛИЩНА СГРАДА С ПОДЗЕМЕН ГАРАЖ, ГАРАЖИ И МАГАЗИНИ. ЕТАП НА СТРОЕЖА: ПОЛАГАНЕ НА НАСТИЛКИ В ОБЩИТЕ ПОМЕЩЕНИЯ, МОНТАЖ АСАНСЬОРИ, АПАРТАМЕНТНИ ВРАТИ И ВЪНШНА ИЗОЛАЦИЯ.
Светли, просторни, удобни и фунционални жилища.Цени от 1650Е до 1820Е
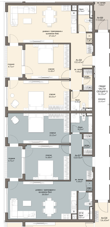
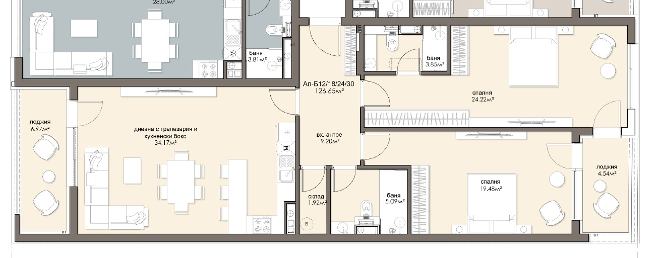
Избор на тристайни апартаменти с квадратура от 118кв.м. до 146кв.м.
Качествено строителство със срок на завършване 2026г.
Комуникативна локация в ж.к. Люлин 5 - на спирка на трамвай и автобус. На три трамвайни спирки от метростанция Люлин .
ДИРЕКТНИ ПРОДАЖБИ ОТ ИНВЕСТИТОРА!!! КУПУВАЧЪТ НЕ ДЪЛЖИ КОМИСИОННА!!!
За контакт: Георгиева 0888961155 и 0888835699







