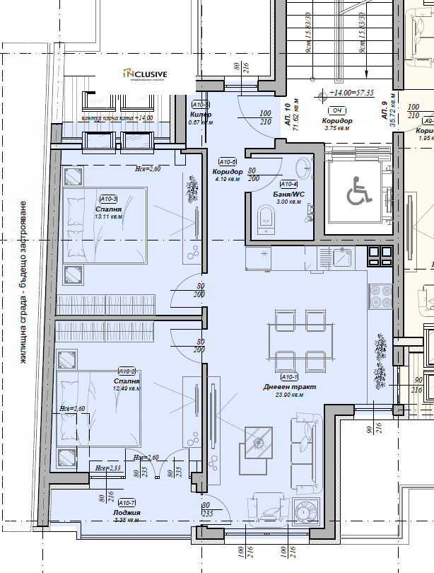
INclusive Недвижими имоти представя за продажба тристаен апартамент с площ от 91 кв. м., разположен на 6ти етаж от новострояща се сграда в центъра на град Варна, в близост до Районен съд.
Апартаментът е с южно изложение, съответно гарантира максимално естествена светлина и комфорт. Сградата предстои да бъде въведена в експлоатация в началото на 2027г., а разпределението на апратамента е отлично - състои се от дневен тракт (23.90кв.м.), спалня (12.49кв.м.), втора мастър спалня (13.11кв.м.), санитарен възел (3.00кв.м), килер (0.67кв.м), коридор (4.19кв.м.), и лоджия (3.35кв.м.).
Жилището ще бъде завършено по БДС.
Схемите на плащане са гъвкави, с възможност за съобразяване с личните възможности.
Има възможност за закупуване на паркомясто на цени от 25 000евро.
INclusive предлага и други двустайни и тристайни апартаменти в същата сграда.
Сградата съчетава естетика, функционалност и високо качество на изпълнение, като предлага разнообразие от жилища от компактни апартаменти, подходящи за инвестиция и отдаване под наем, до просторни тристайни апартаменти, идеални за семейно жилище.
Свържете се с нас още днес, за да получите подробности и да изберете своя апартамент в този забележителен проект!
!!!Приложената снимка е от предходна сграда на инвеститора!







