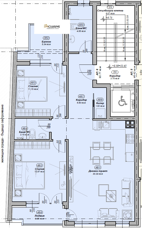
Апартаментът е с южно изложение, съответно гарантира максимално естествена светлина и комфорт. Сградата предстои да бъде въведена в експлоатация в началото на 2027г., а разпределението на апратамента е отлично - състои се от дневен тракт (30.29кв.м.), спалня (11.15кв.м.), втора мастър спалня (13.87кв.м.), санитарен възел (4.85кв.м), втори санитарен възел (3.15кв.м), килер (1.62кв.м), коридор (6.80кв.м.), балкон (5.34кв.м.) и лоджия (3.35кв.м.).
Жилището ще бъде завършено по БДС.
Схемите на плащане са гъвкави, с възможност за съобразяване с личните възможности.
Има възможност за закупуване на паркомясто на цени от 25 000евро.
INclusive предлага и други двустайни и тристайни апартаменти в същата сграда.
Сградата съчетава естетика, функционалност и високо качество на изпълнение, като предлага разнообразие от жилища от компактни апартаменти, подходящи за инвестиция и отдаване под наем, до просторни тристайни апартаменти, идеални за семейно жилище.
Свържете се с нас още днес, за да получите подробности и да изберете своя апартамент в този забележителен проект!
!!!Приложената снимка е от предходна сграда на инвеститора!
Виж всички обяви в inclusive_varna.bazar.bg или тук
        
       
         
         
             
            






