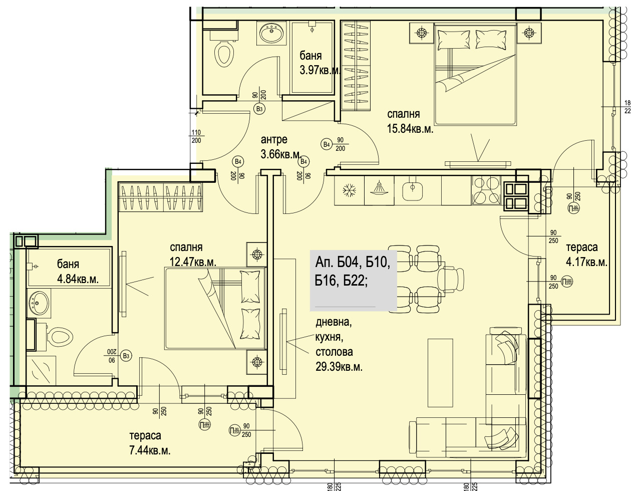
➡Апартаментът се състои от антре, 2 бани с тоалетна, 2 спални, дневна с кухня и трапезария, 2 тераси и е с обща площ от 108,76 кв.м. Изложение - юг, изток!
✔Локация:
700м от Езикова гимназия Пловдив
650м от Спортна зала ПУ
700м от Пловдивски университет Паисий Хилендарски - Нова сграда
950м от УМБАЛ Пловдив АД
✔Технически характеристики на сградите:
Конструкция: Монолитна, стоманобетонна;
Стени между съседни имоти - зид от керамични тухли с обща дебелина 25см;
Външна топлоизолация - 10см
PVС дограма Rehau, 7-камерна, двоен стъклопакет
Входни врати: Блиндирани
Вътрешни стени и таван - гипсова мазилка, под - циментова замазка;
Асансьор: електрически, шумоизолиран;
Общи части: Напълно завършени по проект.
✔Паркиране: Възможност за закупуване на паркоместа, както и подземни гаражи.
Реф. : 9070
Виж всички обяви в alphaestate.bazar.bg или тук
        
      
        
        
        
        
        
            
            
            
            
            






