'3mo' недвижими имоти продава тристаен апартамент в кв. Сухата река. Имотът се намира на втори етаж и се състои от: дневна с кухненски бокс (34,08 кв.м.), две спални (13,48 кв.м. ; 12,98 кв.м.), антре (11,83 кв.м.), балкон (към дневната, 3,92 кв.м.), втори балкон (към спалните, 3,32 кв.м.), баня с тоалетна (3,99 кв.м.), отделна тоалетна (1,96 кв.м.) и склад (към едната спалня, 1,08 кв.м.). Общата площ на апартамента е 124,42 кв.м., от които застроената площ е 106,02 кв.м. Отопление: изводи за климатици във всяка стая; радиатори ТЕЦ; подово отопление в баните.
Сградата е с получен АКТ 14!
Очакван АКТ 16 в края на 2026 г.
Централното, но същевременно тихо и спокойно местоположение на сградата е основен приоритет за собствениците.
Намира се на пешеходно разстояние от: метростанции Хаджи Димитър ( 3 мин.) и Театрална (13 мин), училище 143 ОУ (5 мин); детски градини Дъга и Слънце (5 мин.), парк-градина Площад родина (1 мин.), парк Заимов (13 мин.), BILLA Черковна и BILLA В. Вазов (3 мин.).
Районът е с изключително добре изградена инфраструктура.
Апартаментът се издава по БДС: Стени шпакловка ; Подове замазка;
За прозорците е избрана дограма с трислоен стъклопакет с К стъкло профил;
Входната врата на апартамента е блиндирана;
Към всяко жилище са осигурени звънчева, телефонна и видеодомофонна инсталации, мрежа за включване на кабелна телевизия и интернет.
Сградите са топлоизолирани с 10 см EPS изолация. Покривите са топлоизолирани с XPS изолация 10 см и двойно хидроизолирани. Всички тераси също са хидроизолирани.
Сграда от висок клас строителство:
* Фасадно лед осветление и декоративно градинско осветление, което да очертае парцела и зелените площи
* Система за контрол на достъпа към сградата и подземния гараж
* Система за видеонаблюдение, което обхваща периметъра около сградата
* Видеодомофонна система с контрол на достъп с карта или чипове
* СОТ система за всеки апартамент
* Електронни водомери при които цялата информация ще се сканира от входа на сградата
* Изводи за електрически щори за всеки прозорец в жилищната част
* Изводи за климатици във всяка стая
* Изводи за радиатори ТЕЦ
* Подово отопление в баните и изводи за поставяне на лири
* Блиндирани врати.
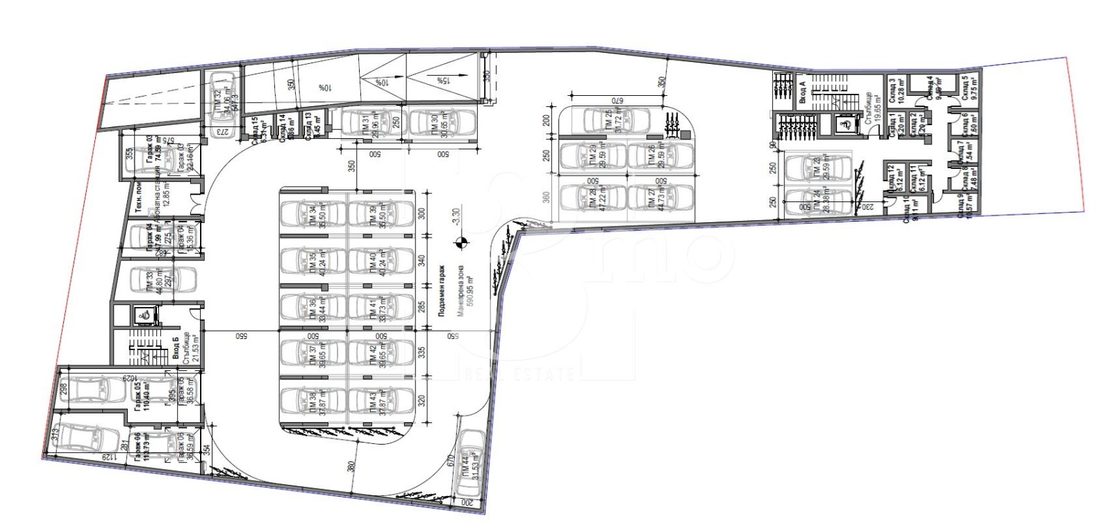
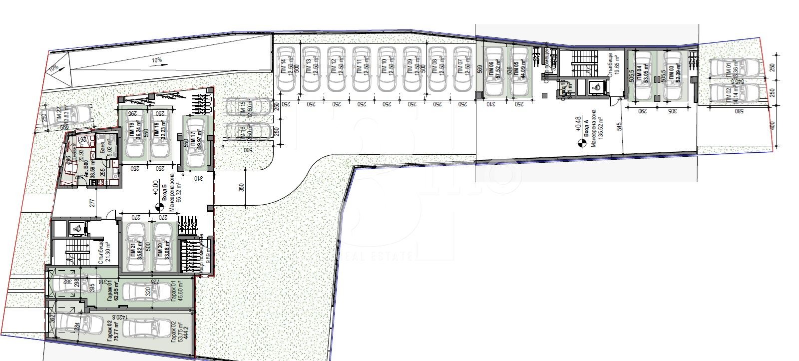
Към апартамента може да се закупи отделно паркомясто на цени 25 000 - 30 000 евро с ДДС.
Предлагаме и други жилища в същата сграда.
Оферта N:26
Виж всички обяви в 3mo_academica.bazar.bg или тук







