☎️0888-755-861, 0888-333-759
гр. Русе, кв. Дружба3
🔝🔝🔝ЦЕНИ от 1150 евро/ кв.м.
КУПУВАШ, БЕЗ ДА ПЛАЩАШ НА БРОКЕР!!!
❗БЕЗ КОМИСИОННА ОТ Купувача.❗❗
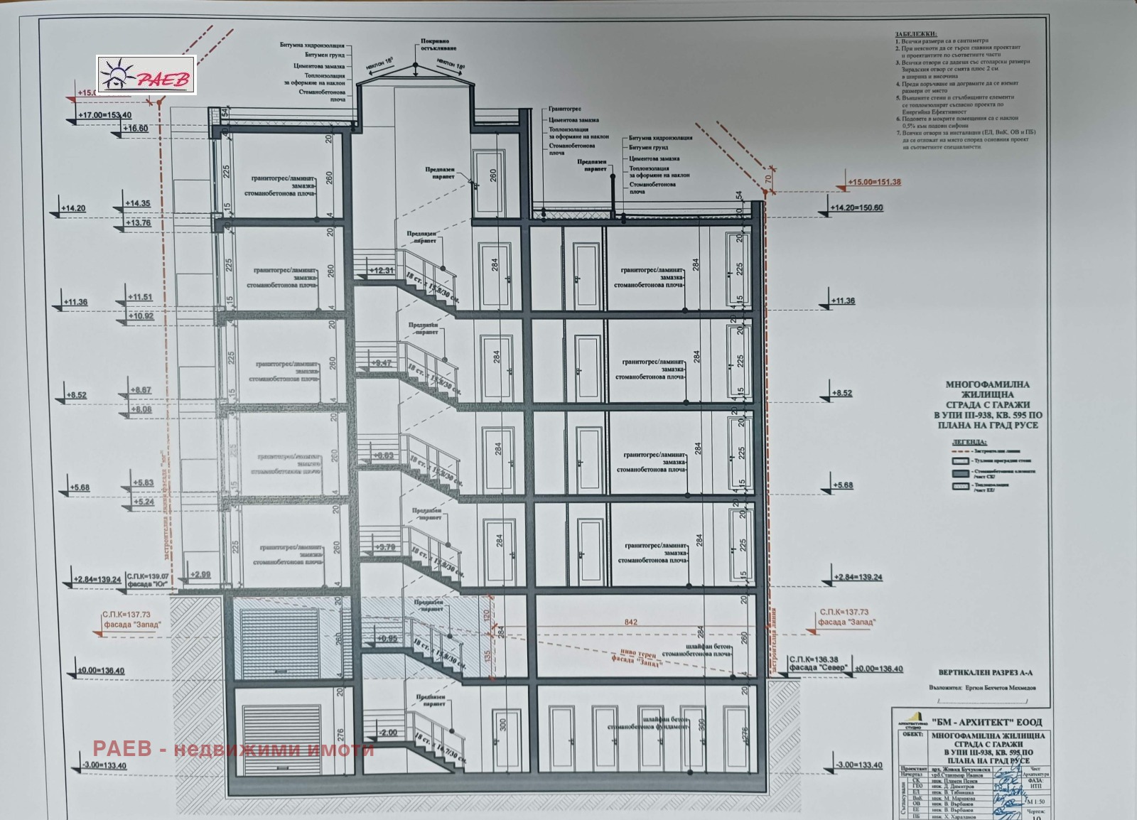
🏠 Агенция Раев предлага апартаменти в новострояща се модерна сграда в кв. Дружба 3
Сградата ще бъде на 5 етажа, със ЗП 251 кв.м., РЗП 2670 кв.м.
✅ Местоположение в непосредствена близост до к-с Олимпия, Дом майка и дете.
✅ Атрактивни цени БЕЗ КОМИСИОН, ЦЕНИ на зелено от ИНВЕСТИТОР!
🔝🔝🔝ЦЕНИ от 1150 евро/ кв.м.
❗❗🔝🔝Най- добри условия на плащане!✨
❗❗Първоначална вноска на плащане 20 %
❗❗Останалата сума може на разсрочено плащане при Акт14 и Акт15.
❗❗Възможно е договаряне на плащане!✨
✅ Двустайни и тристайни жилища с оптимално разработени разпределения;
✅ Гаражи с директен достъп към асансьора на сградата;
*Надземни гаражи с врата на цени от 22000евро.
*Подземни гаражи /паркоместа/ 17000 евро.
✅ Модерна архитектура, висококачествени материали и иновативни технологии.
Жилищата се предлагат с:
👉 Блиндирана входна врата;
👉 Стени и тавани варо-циментова мазилка с машинна гипсова шпакловка с високо качество, което позволява директно боядисване;
👉 Най-висок клас PVC дограма;
👉 ВиК инсталация;
👉Срок на завършване Акт16 - 2027Г.
🏡Вашият нов дом Ви очаква!🔑
☎️Обадете се сега 0888-755-861, 0888-333-759
📍Агенция Раев съдейства безплатно за жилищни и потребителски кредити. Консултира в избора на банка, за желания от вас кредит при най- добрите условия и най-изгодни оферти.
📍Агенцията съдейства безплатно през целия процес на подготовка и усвояването на кредита.







