Translations in other languages:
All real estate ads published on imot.bg have been translated into English and published on the partner site
Получихте нова обява по филтър





Промяна на цена на наблюдавана обява


стара цена
нова цена
imot.bg – обяви за продажби и наеми на имоти
Сайт за имоти №1
Translations in other languages:
All real estate ads published on imot.bg have been translated into English and published on the partner site
ДОБАВИ ОБЯВА Редакция на обява
Начало Публикуване Търсене Нови сгради Агенции Новини Кредити + Още... Моят имот
Продава 3-СТАЕН
град Варна, Бриз
280 500 €
548 610.32 лв.

(1 948 €, 3 809.96 лв./m2)
Не се начислява ДДС
История на цената
Коригирана в 10:27 на 2 октомври, 2025 год.
Обявата е посетена 408 пъти.
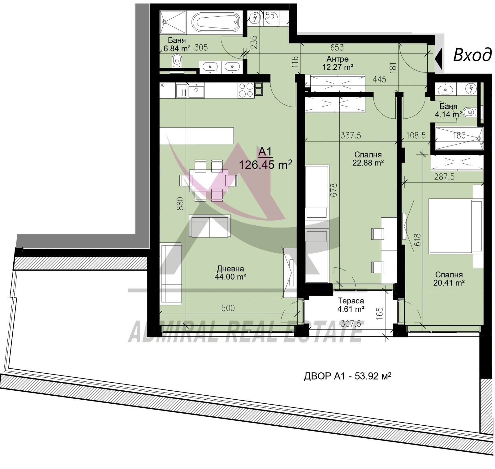
Площ:
144 m2
Етаж:
1-ви от 5
Строителство:
Тухла, Въведен в експлоатация 2025 г.

Описание на имота:


ПРОСТОРНИ СТАИ - ПРЕДПОЧИТАНА ЛОКАЦИЯ - КАЧЕСТВЕНО СТРОИТЕЛСТВО Недвижими имоти 'Admiral Real Estate' Ви предлага за продажба ПРОСТОРЕН ТРИСТАЕН имот в района на един от най-предпочитаните райони, а именно кв. Бриз. Жилището се намира на 1-ви етаж от общо 5. Изложение - югозапад. Площ - 144кв м Разпределение на имота - входно антре, всекидневна с кухненски бокс ( 44кв м ), две спални ( 22,88кв м / 20,41кв м ), две санитарни помещения, избено помещение ( 3кв м ), двор ( 54кв м). Опция за закупуване на подземни и открити паркоместа. Сградата се намира в един от най-предпочитаните райони за живеене в град Варна, а именно кв. Бриз. За удобство на живущите в района има множество магазини, Кауфланд, фитнес, аптеки, достъп по главен булевард и гимназия на 15мин. пешеходно разстояние. Агенция за недвижими имоти 'Admiral Real Estate' извършва всички необходими юридически и технически проверки на имота, организира всички етапи на сделката до нейното финализиране. Също така съдействаме за отпускане на банков кредит при преференциални условия от водещи банки в страната. За повече информация и оглед - Валентина Игнатова тел. 0878 699 443 код - 228058
Виж всички обяви в admiralres.bazar.bg или тук
Особености
Тухла
Асансьор
С паркинг
Интернет връзка
С действащ бизнес
Видео наблюдение
Контрол на достъпа
За ремонт
Възможност за дан. кредит
За контакт:
0878699443
Брокер:
Валентина Игнатова
0878699443
Офис: Варна , бул.Цар Освободител 109 А офис 12
Още оферти от брокера: Продава | Дава под наем | Купува | Наема
Агенция:
АДМИРАЛ РИЪЛ ЕСТЕЙТ ЕООД
0886732489
АДМИРАЛ РИЪЛ ЕСТЕЙТ ЕООД logo
Медал за прослужено време
В imot.bg от 2016 г.
admiralres.imot.bg
Адрес:
област Варна, гр. Варна, бул.' Цар Освободител' 109А, офис 12
http://imotiadmiral.com
ИЗПРАТИ ЗАПИТВАНЕ
ИЗПРАТИ ЗАПИТВАНЕТО

Продава 3-СТАЕН
град Варна, Бриз
Обява: 1c175195580151805

280 500 €
548 610.32 лв.
История на цената
(1 948 €, 3 809.96 лв./m2)

Не се начислява ДДС
ЗАПАЗИ ОБЯВАТА

Местоположение: град Варна, Бриз

Виж още имоти от Варна или още Тристайни Апартаменти във Варна
Допълнителни данни за имотите в района и сравнение с други райони: Търсене в АРХИВ 2013 - 2025 г.











Добави/редактирай
вид имот и район
*Средните цени са определени чрез медиана стойност.
Още обяви в imot.bg
КОНТАКТИ | SMS КОДОВЕ | СТАТИСТИКА | ПОМОЩ | ОБЩИ УСЛОВИЯ | РЕКЛАМА | ТОП ОФЕРТА | Въпроси и предложения към imot.bg
Резон Медия | Имоти | Автомобили | Работа | Новини | Обяви | Преводи и легализация 2002-2025 ® Copyright imot.bg
© imot.bg ползва и препоръчва хостинг услугите на Bulinfo.net
Следвайте ни в: