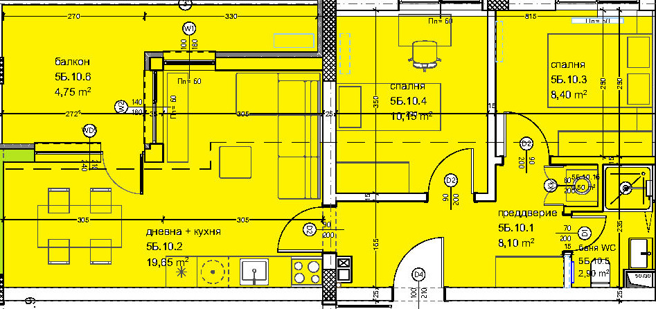
ХОУМПОЙНТ Ви, предлага възможност да закупите тристаен апартамент с площ от 78 кв.м в кв.Кайсиева градина във Варна. Апартаментът включва коридор с място за портманто, просторен дневен тракт с кухненски бокс, две спални, смесено санитарно помещение, килер/мокро помещение и тераса.
Кайсиева градина е един от най-търсените райони във Варна, предлагащ отлична градска свързаност с удобен достъп до центъра на града. Районът се развива динамично с нови търговски обекти и зелени площи, което го прави привлекателен както за постоянно живеене, така и за инвестиция взимайки в предвид покачващите се цени в района. Предлагат се гъвкави условия за плащане спрямо етапите на строителство.
Архитектурата се отличава с изчистен и модерен стил, използвайки висококачествени материали и цветова гама от естествени нюанси, които хармонично се вписват в района. Отоплението е решено от ТЕЦ. Сградата се строи с бързи темпове, очакван акт 14 края на другата година.Имотът се издава по БДС.Комплексът разполага и с други апартаменти, при интерес за цени и разпределения се свържете с нас!
ХОУМПОЙНТ съдейства с всички необходими юридически и
технически проверки на имота, организира всички етапи на сделката до нейното
финализиране с нотариалното прехвърляне на имота.
ХОУМПОЙНТ съдейства за консултация с кредитен експерт и отпускане на банков кредит при възможно най-добри условия за клиента!
Виж всички обяви в homepoint.bazar.bg или тук
        
       
         
            






