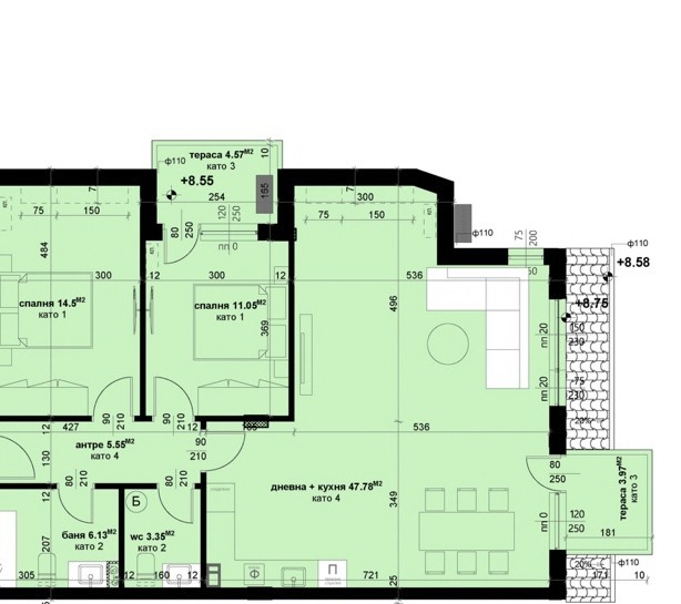
Продава апартамент с две спални, дневна с бокс, две тераси, общ санитарен възел, килер.
Намира се в нова сграда с предвиден Акт Образец 16 до края на 2025г.
Продава се по БДС.
Непоследен етаж.
Възможност за закупуване на гараж или паркомясто в двора на сградата.
Местонахождение: централна градска част, под Областна администрация.
Съдействаме при необходимост за получаване на ипотечен и/или потребителски кредит от банка. Услугата е безплатна и необвързана с покупка на имот.







