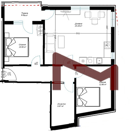
Матекс Имоти Ви предлага новосъздаващ се жилищен проект, който предлага просторен и светъл тристаен апартамент с площ от 97 кв.м, 6-ти етаж в 6 етажна сграда с югоизточно изложение. Този апартамент е идеален избор за семейства, които търсят модерно и функционално жилище в спокойна и добре развита среда.
Детайлно описание на апартамента:
Просторен хол с кухненски бокс, проектиран за максимално удобство при ежедневно използване , две отделни спални, едната от които с директен изход към просторна тераса, която предлага възможност за приятна релаксация на открито и баня с тоалетна. За контакт 0878615408 Траян Кателиев VN4878







