Translations in other languages:
All real estate ads published on imot.bg have been translated into English and published on the partner site
Получихте нова обява по филтър





Промяна на цена на наблюдавана обява


стара цена
нова цена
imot.bg – обяви за продажби и наеми на имоти
Сайт за имоти №1
Translations in other languages:
All real estate ads published on imot.bg have been translated into English and published on the partner site
ДОБАВИ ОБЯВА Редакция на обява
Начало Публикуване Търсене Нови сгради Агенции Новини Кредити + Още... Моят имот
Продава 3-СТАЕН
град Варна, м-т Манастирски рид
82 000 €
160 378.06 лв.

(1 171 €, 2 290.28 лв./m2)
Не се начислява ДДС
История на цената
Коригирана в 9:38 на 29 септември, 2025 год.
Обявата е посетена 1027 пъти.
Площ:
70 m2
Етаж:
Партер от 5
Газ:
НЕ
ТEЦ:
НЕ
Строителство:
Тухла, Въведен в експлоатация 2008 г.

Описание на имота:


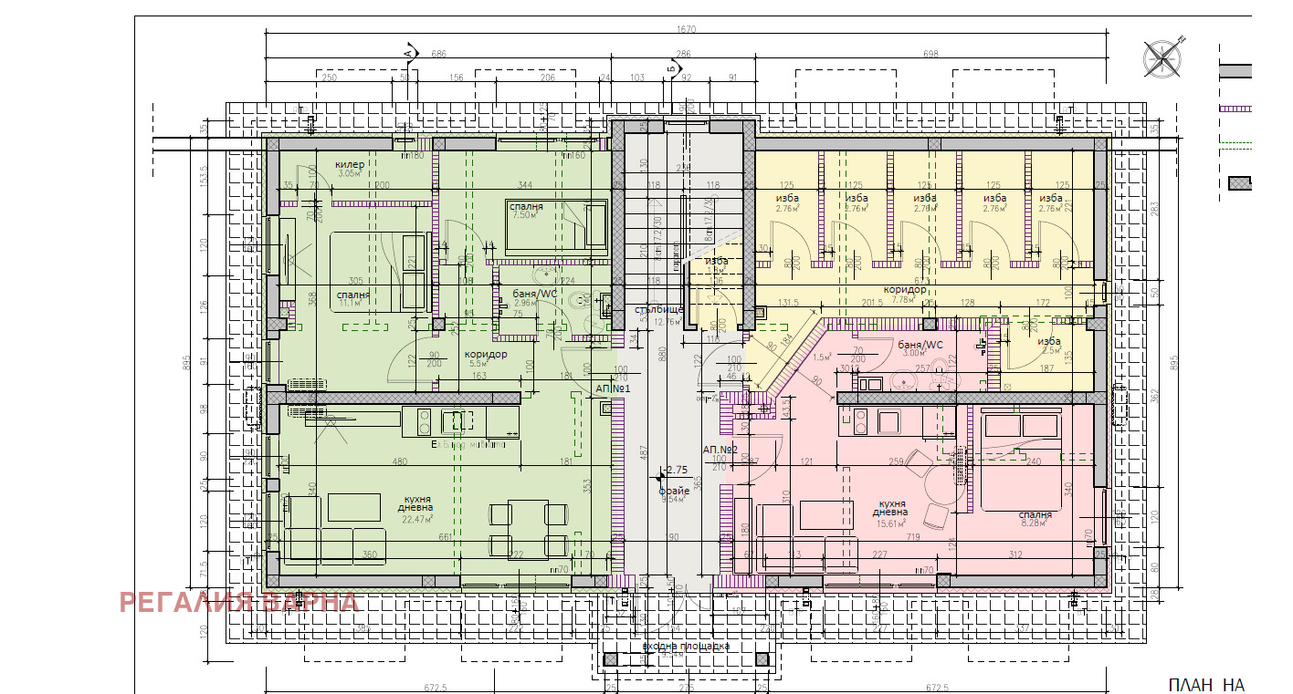
РЕГАЛИЯ ВАРНА продава ЕКСКЛУЗИВНО тристаен тухлен апартамент с атрактивна цена. Имота е с разпределение голяма дневена; две спални; гардеробно към едната спалня; Б+Т; коридор. Имота се намра в сграда, въведена в експлоатация, на която се прави пълна реиновация. Отличен достъп изцяло по асфалтов път, без денивелации на пътя и в двора на самия имот. Близост до автобусни спирки, до голям хранителен магазин с всички комуникации. Отлично инвестиционно решение. Има опция за закупуване на паркомясто в двора на сградата. Разпределението е оцветенов в зелено в приложената архитектура. За подробна информация ни потърсете.
Виж всички обяви в regalia_varna.bazar.bg или тук
Особености
Тухла
За контакт:
0896340851
Агенция:
РЕГАЛИЯ ВАРНА
0896340851
В imot.bg от 2024 г.
Адрес:
област Варна, гр. Варна, ул. Марагидик 50
ИЗПРАТИ ЗАПИТВАНЕ
ИЗПРАТИ ЗАПИТВАНЕТО

Продава 3-СТАЕН
град Варна, м-т Манастирски рид
Обява: 1c175160912491359

82 000 €
160 378.06 лв.
История на цената
(1 171 €, 2 290.28 лв./m2)

Не се начислява ДДС
ЗАПАЗИ ОБЯВАТА

Местоположение: град Варна, м-т Манастирски рид

Виж още имоти от Варна или още Тристайни Апартаменти във Варна
Допълнителни данни за имотите в района и сравнение с други райони: Търсене в АРХИВ 2013 - 2025 г.











Добави/редактирай
вид имот и район
*Средните цени са определени чрез медиана стойност.
Още обяви в imot.bg
КОНТАКТИ | SMS КОДОВЕ | СТАТИСТИКА | ПОМОЩ | ОБЩИ УСЛОВИЯ | РЕКЛАМА | ТОП ОФЕРТА | Въпроси и предложения към imot.bg
Резон Медия | Имоти | Автомобили | Работа | Новини | Обяви | Преводи и легализация 2002-2025 ® Copyright imot.bg
© imot.bg ползва и препоръчва хостинг услугите на Bulinfo.net
Следвайте ни в: