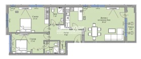
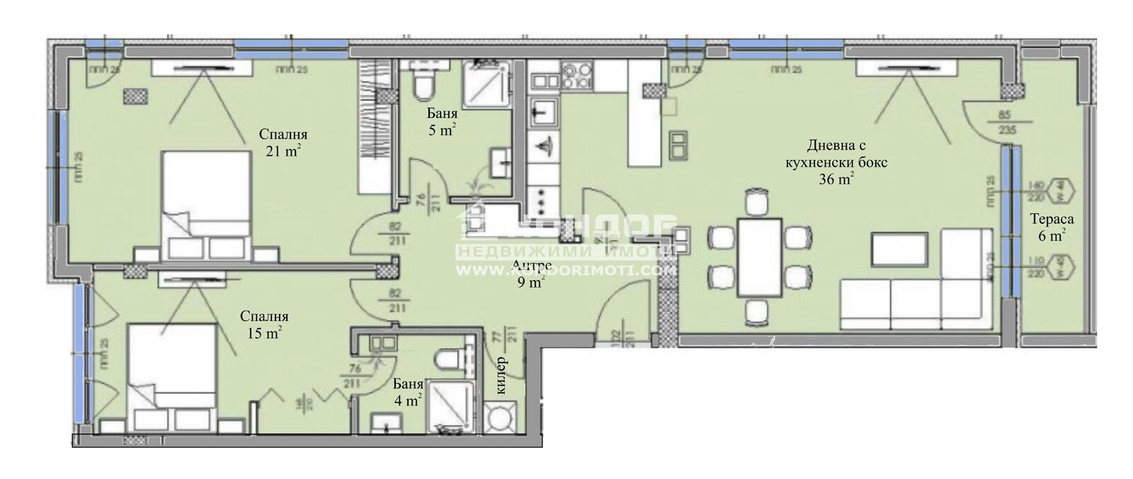
Оферта 63848: ТОП ЛОКАЦИЯ !!!Предлагаме на вашето внимание МНОГО ЛУКСОЗНА сграда, която привлича вниманието със своята локация, разположена в близост до супер центъра на града, голям хранителен Хипермаркет, училище и удобен транспорт. Жилището се състои от просторна ъглова дневна 36кв.м. с трапезария и кухненски бокс с излаз на тераса, две големи спални: родителска 15кв.м. с дрешник и собствена баня и детска 21 кв.м., втора баня с тоалетна, килер/перално помещение и широко входно антре. Изпълнението е осъществено с висококачествени материали и съвременни технологии, по европейски стандарт, шесткамерна PVC дограма, блиндирана входна врата с 4-странно заключване, сензорно осветление, хидравлични асансьори с огледална кабина. Проектът включва както жилищна, така и обществено обслужваща дейност, която гарантира удобства от първа необходимост . Съдействие за банково кредитиране с изключително изгодни условия за клиенти на агенция 'Кондор'!!! СВОБОДНИ ПОДЗЕМНИ Паркоместа!!!
ВИЖТЕ ОЩЕ ИЗГОДНИ ОФЕРТИ НА https://www.kondorimoti.com/ С ЕЖЕДНЕВНА АКТУАЛИЗАЦИЯ!







